5154 Sooke Rd, Sooke, British Columbia V9Z 0E3

Listed for:
$2,499,900
3 beds
2 baths
Listed 55 days ago
House for rent: 5154 Sooke Rd, Sooke, British Columbia V9Z 0E3

View all 79 photos

Learn more about this property
Listing provided by:
Maxxam Realty Ltd.
MLS® number:
1013528
Agent:
Shayne Fedosenko
*Indicates required field
Name is required
Email is required
Please enter a valid phone number (e.g., 416-111-1111).

About

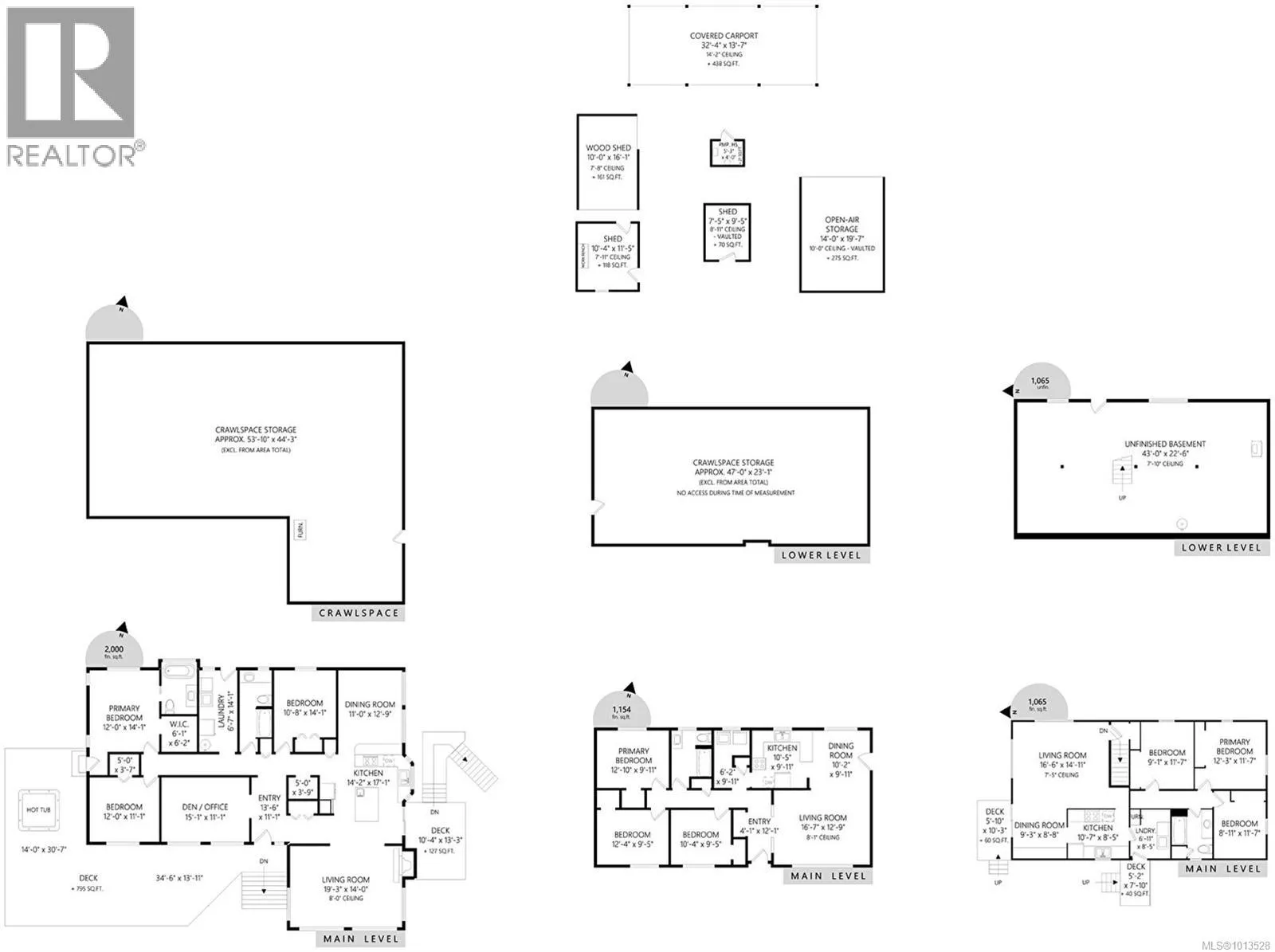
3 Houses + Situated on over 11 parklike acres between Sooke and the Western Communities (10 min each way) with commanding views of Sooke Harbour and the Olympic Mountains. Three separate homes, each with privacy and access via a wrap-around driveway. Main home offers 2,000 sq ft of single-level living, 3 beds plus den, tile/hardwood floors, open kitchen with large island, living room with fireplace, and over 900 sq ft of decks for entertaining. First rental is a 3-bed, 1-bath, 1,150 sq ft older home—ideal for family or home business. Second rental is a 3-bed, 1-bath deregistered mobile with 1,000 sq ft and a 7’10” unfinished daylight basement with woodstove. All homes on separate wells and water systems. Also on site is an income-producing cell tower (discreet and disguised, $1,500/mo). Approx. $6,000/month total income. Sooke allows for 4 homes per 10 acres, development potential. Located at 5154 Sooke Rd (no sign; by appointment only). Listed at $2.49M. (id:27476)

Property Highlights

MLS® Number
1013528
Type
Single Family
Ownership Type
Freehold
Land Size
11.27 ac
Parking Space Total
5

Building

Building Type
House
Square Footage
2000 sqft
Bathrooms Total
2
Bedrooms Total
3
Fireplace Present
Yes
Basement Type
Basement Features
Building Heating Type
Heating Fuel
Other
Building Cooling Type
See Remarks

Location

Street Spotlight - For sale