2-200 39666 Government Road, Squamish, British Columbia V8B 1B6

Listed for:
$34,707
0 beds
0 baths
Listed 44 days ago
2-200 39666 Government Road, Squamish, British Columbia V8B 1B6

View all 4 photos

Learn more about this property
Listing provided by:
RE/MAX Sea to Sky Real Estate
MLS® number:
C8072172
Agent:
Darren Mccartney
*Indicates required field
Name is required
Email is required
Please enter a valid phone number (e.g., 416-111-1111).

About

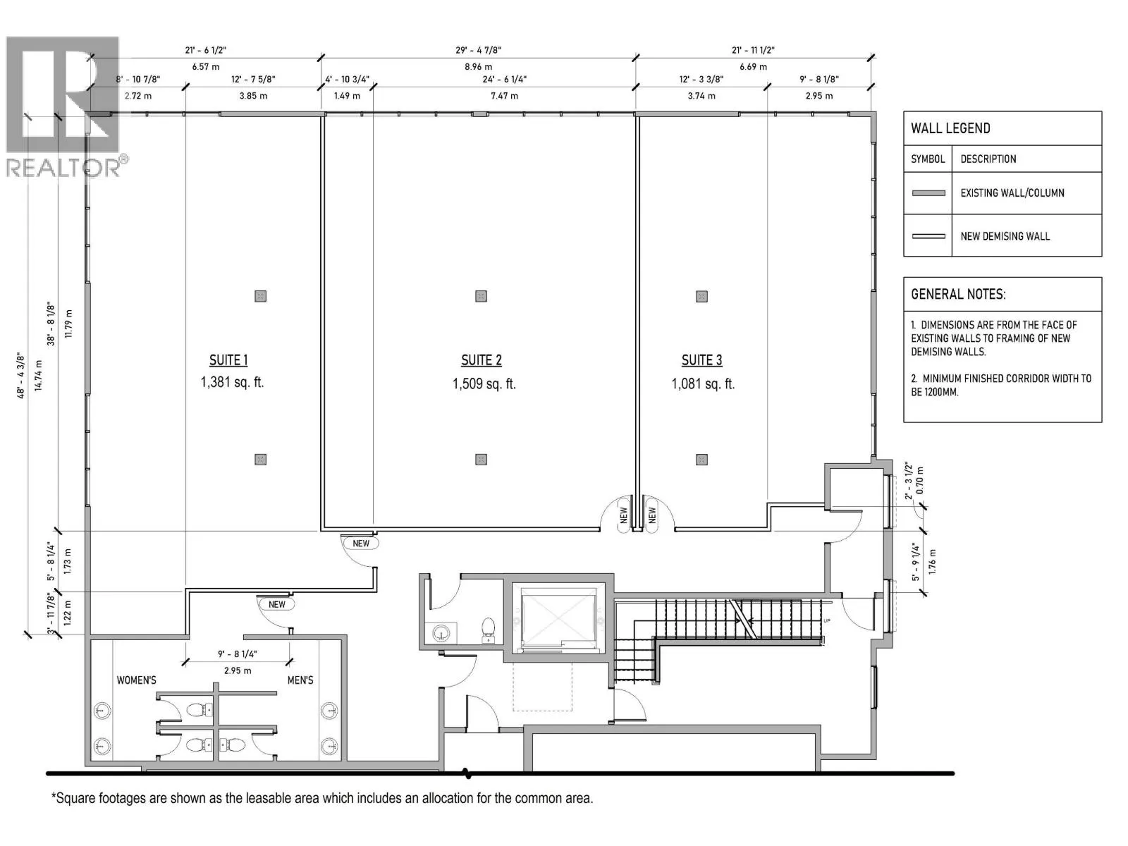
Centrally located, new office space in a quality building by Westurban Developments. This mixed use building is at the north entry of the Squamish Business Park, 5 minutes from all Squamish amenities. The 1,509 sq ft space is bright with floor to ceiling glass and mountain views. Ready for a business to occupy with a generous base unit demise including washroom, fire suppression, HVAC units and 2 commercial washroom rough-ins. Can be demised any size from 1,000 - 3,971 sq. ft. Great parking ratio and very well priced for occupiers or investors! Numerous new projects in the immediate area. Most commercial uses permitted in the flexible MUD-1 zone. Call for more information. (id:27476)

Property Highlights

MLS® Number
C8072172
Type
Office
Maintenance Fee
1100.00
Land Size
25562 sqft

Building

Fireplace Present
No
Basement Type
Basement Features
Building Heating Type
Heating Fuel
Building Cooling Type

Location