1140 Copper Drive, Squamish, British Columbia V1J 1J0

Listed for:
$1,229,000
0 beds
0 baths
Listed 28 days ago
1140 Copper Drive, Squamish, British Columbia V1J 1J0

View all 19 photos

About

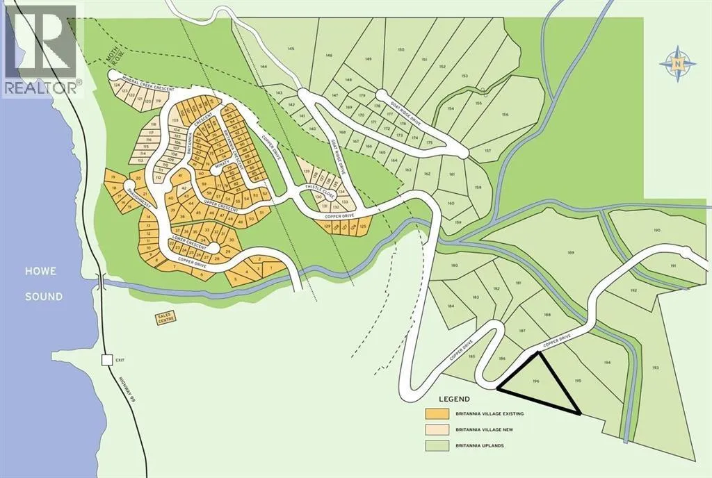
Welcome to 1140 Copper Drive, a truly rare offering of over three acres of premier view land set within the stunning mountain landscape of Britannia Beach. This expansive, benched estate lot provides an exceptional opportunity to build a custom home without compromise. With more than 430 feet of frontage, the property offers outstanding flexibility for a range of architectural possibilities, from a private luxury estate to a thoughtfully designed multi-residence layout. Surrounded by Crown land and protected green space, the setting ensures exceptional privacy and a lasting natural backdrop. Amenities at Britannia Village include restaurants, cafés, a yoga studio, a pub and more-enhancing the appeal of this growing coastal community. Dream big - so many options for this 3 acres lot. (id:27476)

Property Highlights

MLS® Number
R3085679
Type
Vacant Land
Ownership Type
Freehold
Land Size
3.06 ac

Building

Amenities
Marina, Shopping
Fireplace Present
No
Basement Type
Basement Features
Building Heating Type
Heating Fuel
Building Cooling Type

Location

Learn more about this property
Listing provided by:
MLS® number:
R3085679
Agent:
Chris Brown
*Indicates required field
Name is required
Email is required
Please enter a valid phone number (e.g., 416-111-1111).