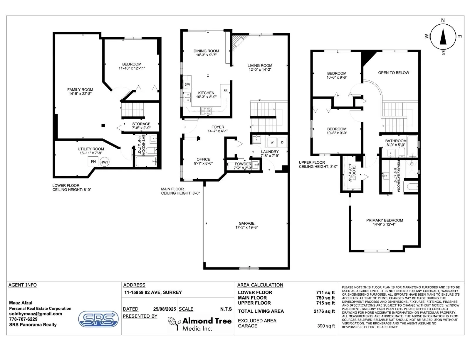
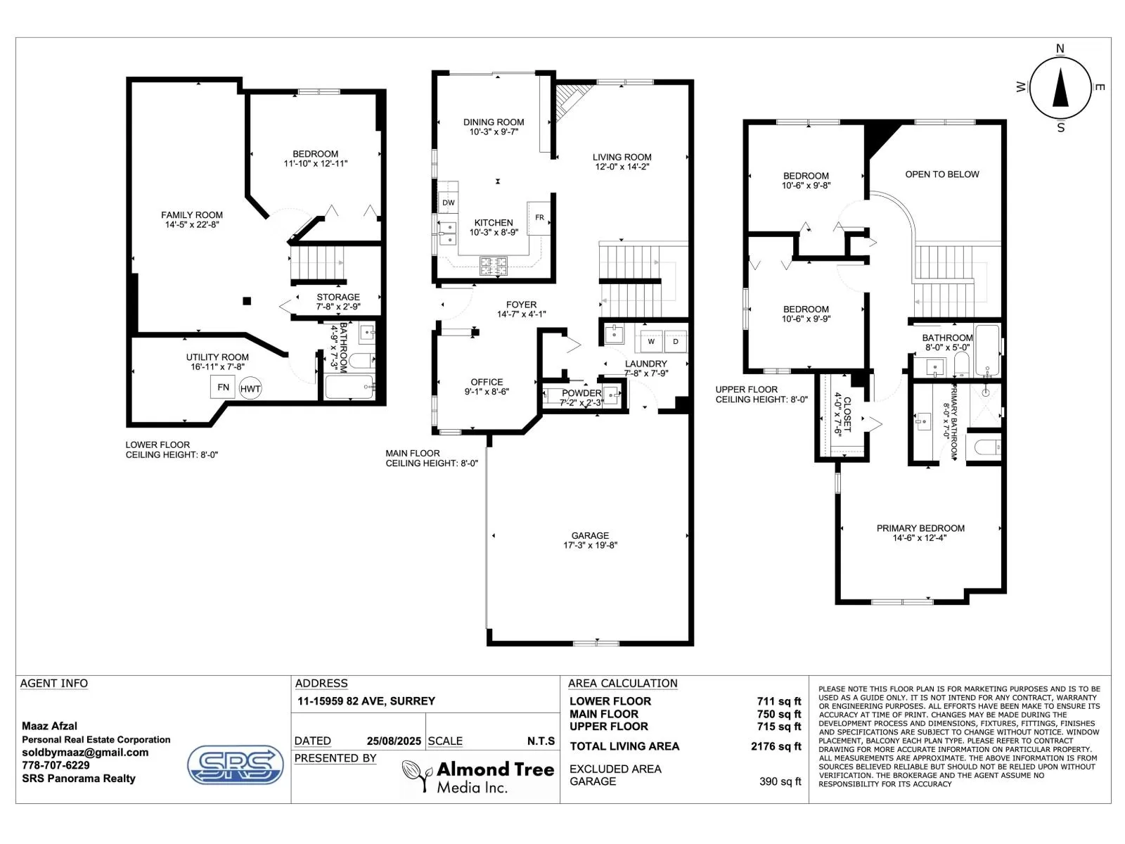
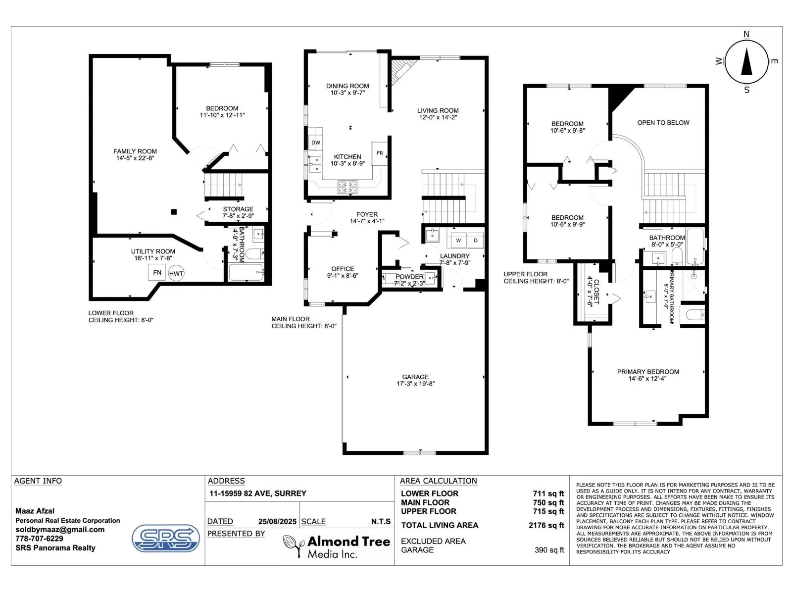
11 15959 82 Avenue, Surrey, British Columbia V4N 0R2

Listed for:
$1,039,999
4 beds
4 baths
Listed 69 days ago
Row / Townhouse for rent: 11 15959 82 Avenue, Surrey, British Columbia V4N 0R2

View all 40 photos

Learn more about this property
Listing provided by:
SRS Panorama Realty
MLS® number:
R3039917
Agent:
Maaz Afzal
*Indicates required field
Name is required
Email is required
Please enter a valid phone number (e.g., 416-111-1111).

About

Welcome to Cherry Tree Lane in prestigious Fleetwood! Fully renovated in 2021, this 4 Bed + Den, 3.5 bath corner-unit townhouse feels like a detached home with its open layout and vaulted ceilings. Updates include a modern kitchen, new flooring, fresh paint, renovated baths, stylish stair spindles, and zebra blinds. Well-managed strata with a newer roof already completed for the complex. Enjoy the side-by-side garage and very private outdoor space surrounded by cedar trees. Family-friendly complex with kids playing throughout. Steps to the leisure centre, library, shops, banks, future SkyTrain, and top schools like Walnut Road Elementary & Fleetwood Park Secondary. Book your showing today! (id:27476)

Property Highlights

MLS® Number
R3039917
Type
Single Family
Maintenance Fee
475.89
Ownership Type
Strata
Parking Space Total
2

Building

Building Type
Row / Townhouse
Storeys
3.00
Square Footage
2736 sqft
Bathrooms Total
4
Bedrooms Total
4
Amenities
Clubhouse, Laundry - In Suite
Fireplace Present
Yes
Basement Type
None (Unknown)
Basement Features
Unknown
Building Heating Type
Forced air
Heating Fuel
Natural gas
Building Cooling Type

Utilities

Water
Municipal water
Utility Sewer
Sanitary sewer, Storm sewer

Location

Street Spotlight - For sale