14579 33b Avenue, Surrey, British Columbia V4P 3M8

Listed for:
$1,750,000
5 beds
4 baths
Listed 127 days ago
House for rent: 14579 33b Avenue, Surrey, British Columbia V4P 3M8

View all 40 photos

Learn more about this property
Listing provided by:
RE/MAX Performance Realty
MLS® number:
R3040498
Agent:
Tom Edwards
*Indicates required field
Name is required
Email is required
Please enter a valid phone number (e.g., 416-111-1111).

About

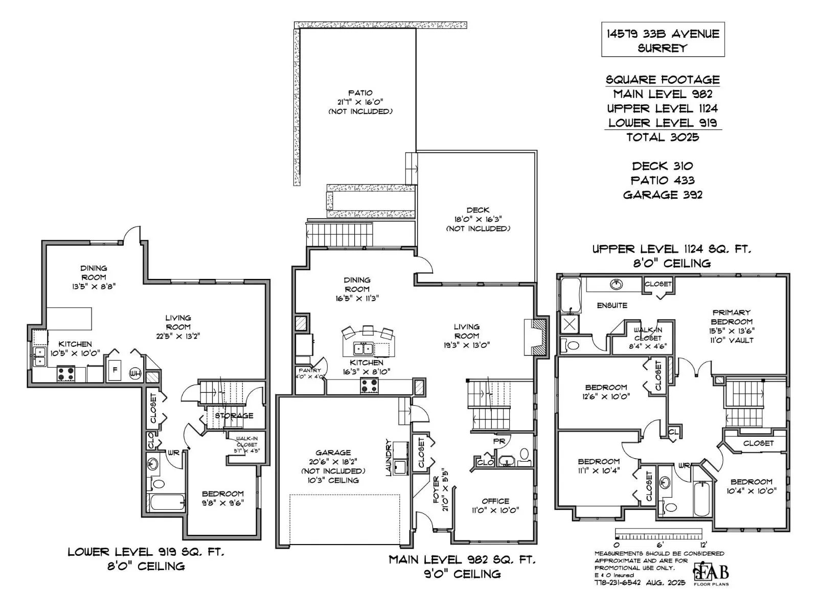
This immaculate Parklane Home located in sought after Sandpiper Estates is bright, updated & offers an unexpected expansive outdoor area that features a private garden oasis with generous seating areas including a fire pit area, covered outdoor dining area, raised gardens, room for the kids & pets, a Fenced dog run area or extra storage for kayaks, paddle boards etc. Bright spacious open concept main floor living offers updated kitchen, S/S appliances, granite counters & sought after 4 bedrooms/2 bath full upper floor plan. The basement offers a move-in ready 1 bedroom suite w/ separate entrance & separate laundry hookups. New furnace, driveway, garage door with finished for studio, salon or gym but easily converted back to garage/shop/man cave. This is the full entertainers package! (id:27476)

Property Highlights

MLS® Number
R3040498
Type
Single Family
Ownership Type
Freehold
Land Size
4726 sqft
Parking Space Total
4

Building

Building Type
House
Square Footage
3025 sqft
Bathrooms Total
4
Bedrooms Total
5
Fireplace Present
Yes
Basement Type
Full (Finished)
Basement Features
Separate entrance
Building Heating Type
Forced air
Heating Fuel
Natural gas
Building Cooling Type

Utilities

Water
Municipal water
Utility Sewer
Sanitary sewer, Storm sewer

Location