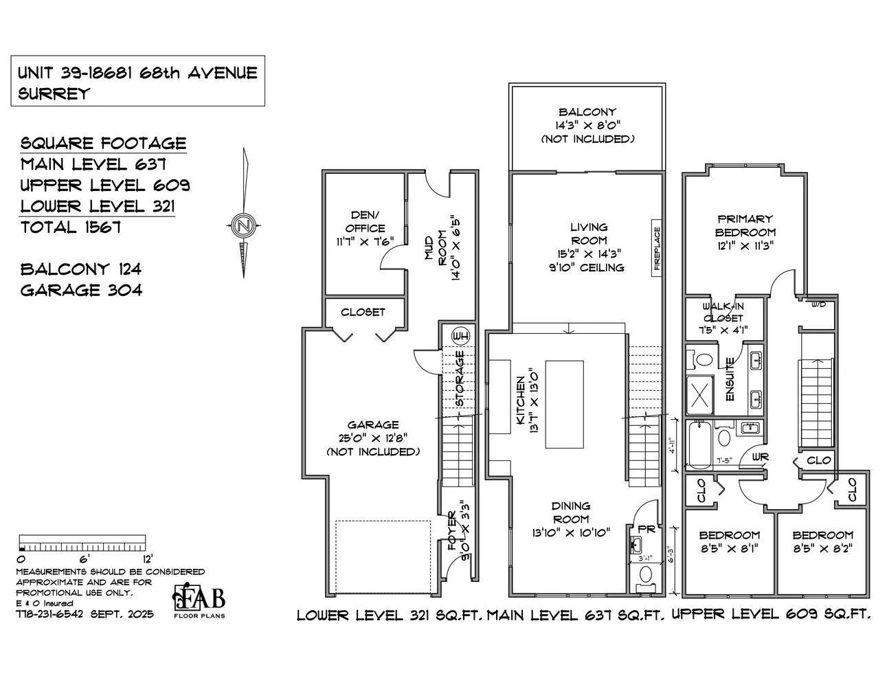
39 18681 68 Avenue, Surrey, British Columbia V4N 6P3

Listed for:
$778,000
3 beds
3 baths
Listed 37 days ago
Row / Townhouse for rent: 39 18681 68 Avenue, Surrey, British Columbia V4N 6P3

View all 40 photos

Learn more about this property
Listing provided by:
RE/MAX LIFESTYLES REALTY
MLS® number:
R3050340
Agent:
R.p. Luke
*Indicates required field
Name is required
Email is required
Please enter a valid phone number (e.g., 416-111-1111).

About

Welcome to Creekside in Clayton, where cozy charm meets family-friendly living. This spacious end-unit townhome offers 1,600 sq ft of well-designed space with 3 bedrooms and 2.5 bathrooms. The open-concept main floor features 9-ft ceilings, a bright and airy layout, and a convenient powder room. The kitchen includes quartz countertops and plenty of room to cook and gather. Upstairs, you'll find three generous bedrooms, including a primary suite with a walk-through closet and a spa-like ensuite with double sinks and a large shower. Step out onto your private deck. Located just steps from shopping, schools, parks, church, and the SkyTrain. The lower level adds a large office, mudroom, tandem garage for 2 vehicles, and an extra outdoor parking spot. Enjoy. (id:27476)

Property Highlights

MLS® Number
R3050340
Type
Single Family
Maintenance Fee
324.54
Ownership Type
Strata
Parking Space Total
3

Building

Building Type
Row / Townhouse
Storeys
3.00
Square Footage
1567 sqft
Bathrooms Total
3
Bedrooms Total
3
Fireplace Present
No
Basement Type
Full (Finished)
Basement Features
Unknown
Building Heating Type
Heating Fuel
Electric
Building Cooling Type

Utilities

Water
Municipal water
Utility Sewer
Sanitary sewer, Storm sewer

Location

Street Spotlight - For sale