109 8168 136a Street, Surrey, British Columbia V3W 2Z6

Listed for:
$869,999
4 beds
4 baths
Listed 89 days ago
Row / Townhouse for rent: 109 8168 136a Street, Surrey, British Columbia V3W 2Z6

View all 40 photos

Learn more about this property
Listing provided by:
RE/MAX Blueprint
MLS® number:
R3054800
Agent:
Shamsher Hundal
*Indicates required field
Name is required
Email is required
Please enter a valid phone number (e.g., 416-111-1111).

About

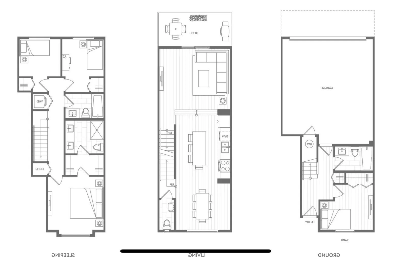
Welcome to this beautiful family oriented community situated in the Bear Creek area. Very close to all the amenities including shopping, parks, and restaurants. This 4 Bed 4 bath townhome plan features a fenced and gated front yard with bedroom and full bathroom on the ground level. Main floor has an open concept floor plan with family/living room, Kitchen, dining and powder room. Top floor features three very decent size rooms including one master bedroom and two full washrooms. Full size double car garage parking with EV charger pre-wire. Pets and Rental are allowed. (id:27476)

Property Highlights

MLS® Number
R3054800
Type
Single Family
Maintenance Fee
340.00
Ownership Type
Strata

Building

Building Type
Row / Townhouse
Square Footage
1586 sqft
Bathrooms Total
4
Bedrooms Total
4
Amenities
Laundry - In Suite
Fireplace Present
No
Basement Type
Full (Finished)
Basement Features
Unknown
Building Heating Type
Baseboard heaters
Heating Fuel
Electric
Building Cooling Type

Utilities

Water
Municipal water
Utility Sewer
Sanitary sewer, Storm sewer

Location

Street Spotlight - For sale