16 16561 17a Avenue, Surrey, British Columbia V3Z 1J3

Listed for:
$888,500
3 beds
3 baths
Listed 13 days ago
Row / Townhouse for rent: 16 16561 17a Avenue, Surrey, British Columbia V3Z 1J3

View all 29 photos

Learn more about this property
Listing provided by:
RE/MAX Westcoast
MLS® number:
R3064220
Agent:
Toby Belda
*Indicates required field
Name is required
Email is required
Please enter a valid phone number (e.g., 416-111-1111).

About

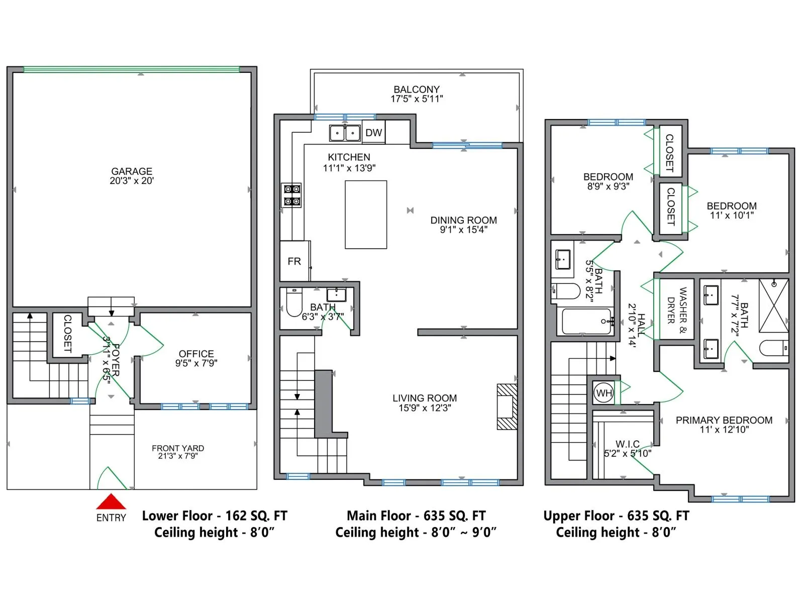
Welcome to this rarely available outside unit at Hazelwood. This pristinely kept 3 bedroom and large office, feels like a detached home located on the quiet side of the complex. Easy access to street parking from your private/enclosed front yard and front door, looking out to the unobstructed green space. The main living area features a very efficient floorplan with no wasted space. That opens up to the dining and kitchen area boasting high end appliances and designer cabinetry. To top off the luxury checklist, this unit also features a side by side double garage with epoxied floors and central air-conditioning. Bonus! State of the art amenities with VERY LOW strata fees! OPEN HOUSE SATURDAY NOV 8 12-3pm & SUNDAY NOV 9 FROM 2-4pm (id:27476)

Property Highlights

MLS® Number
R3064220
Type
Single Family
Maintenance Fee
235.97
Ownership Type
Strata
Parking Space Total
2

Building

Building Type
Row / Townhouse
Square Footage
1454 sqft
Bathrooms Total
3
Bedrooms Total
3
Amenities
Air Conditioning, Clubhouse, Exercise Centre, Laundry - In Suite
Fireplace Present
Yes
Basement Type
None (Unknown)
Basement Features
Unknown
Building Heating Type
Forced air
Heating Fuel
Building Cooling Type
Air Conditioned

Utilities

Water
Municipal water

Location

Street Spotlight - For sale