6726 133 Street, Surrey, British Columbia V3W 7J6

Listed for:
$999,000
3 beds
2 baths
Listed 11 days ago
House for rent: 6726 133 Street, Surrey, British Columbia V3W 7J6

View all 17 photos

Learn more about this property
Listing provided by:
eXp Realty of Canada, Inc.
MLS® number:
R3065056
Agent:
Raj Jhajj
*Indicates required field
Name is required
Email is required
Please enter a valid phone number (e.g., 416-111-1111).

About

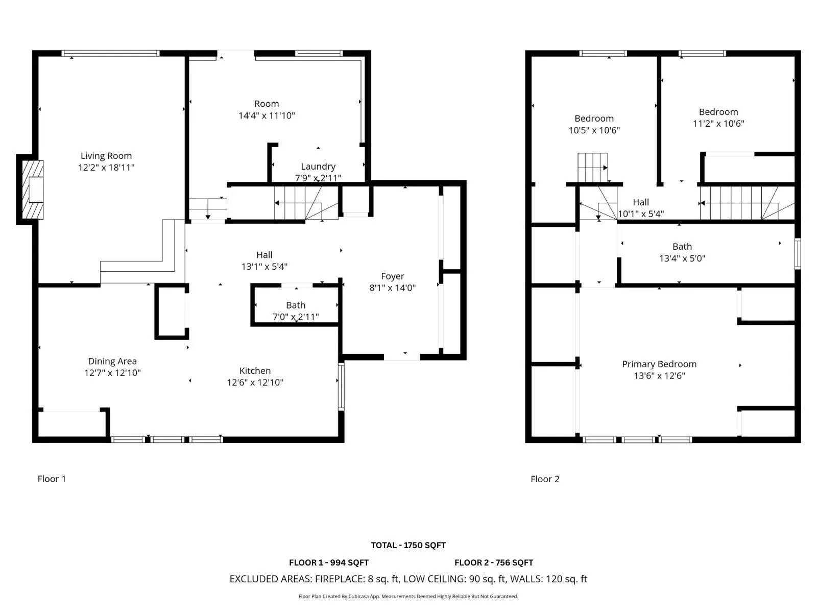
Charming detached single-family home featuring 3 bedrooms and 2 bathrooms, ideally situated in a central and highly desirable neighbourhood. Set on a level lot backing onto a peaceful park, this property combines comfort, privacy, and convenience. Families will appreciate being within the catchment area for W.E. Kinvig Elementary and Princess Margaret Secondary. Access to outdoor recreation right from your backyard, while Unwin Park-with its trails, sports fields, and water park-is just steps away. This home ensures effortless access to everyday amenities. BC Assessment is over $1,100,000-one of the few homes listed under $1M with a nice lot & livable condition. A layout offering SUITE POTENTIAL, this home offers great value, income options, and future growth potential. OH Sat/Sun, 1-3pm (id:27476)

Property Highlights

MLS® Number
R3065056
Type
Single Family
Ownership Type
Freehold
Land Size
4002.88 sqft

Building

Building Type
House
Square Footage
1948 sqft
Bathrooms Total
2
Bedrooms Total
3
Fireplace Present
No
Basement Type
None (Unknown)
Basement Features
Unknown
Building Heating Type
Baseboard heaters
Heating Fuel
Electric
Building Cooling Type

Utilities

Water
Municipal water
Utility Sewer
Sanitary sewer, Storm sewer

Location

Street Spotlight - For sale