1311 133a Street, Surrey, British Columbia V4A 4C4

Listed for:
$1,648,000
4 beds
4 baths
Listed 19 days ago
House for rent: 1311 133a Street, Surrey, British Columbia V4A 4C4

View all 40 photos

About

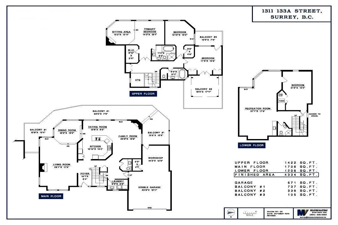
Downsizing from a large home & want to finally get to live at the beach, enjoy the ocean living lifestyle? But still want to keep everything...offering a spacious 4,334 SF on 3 levels w/ central A/C. Large open living spaces & vaulted ceilings, 4 bedrooms/3.5 bath. Ocean views, three levels of balconies total over 1,100 SF. Bedrooms all offer large closets and balconies. Natural gas fireplace in vaulted living room, formal dining area, natural gas fireplace in family rm. Kitchen island, lots of counter space & large eating area. Laundry on main floor. Direct west exposure for Sunsets. Attached workshop and double garage for your cars. Quiet peaceful no-traffic street, located on the shores of Ocean Park. A Natural fauna ravine trail walk to the beach to the west. Lot Size: 10,653 SF. (id:27476)

Property Highlights

MLS® Number
R3083319
Type
Single Family
Maintenance Fee
435.54
Ownership Type
Strata
Land Size
10653 sqft
Parking Space Total
4

Building

Building Type
House
Square Footage
4334 sqft
Bathrooms Total
4
Bedrooms Total
4
Amenities
Air Conditioning
Fireplace Present
Yes
Basement Type
Full (Finished)
Basement Features
Unknown
Building Heating Type
Forced air
Heating Fuel
Natural gas
Building Cooling Type
Air Conditioned

Utilities

Water
Municipal water
Utility Sewer
Sanitary sewer, Storm sewer

Location

Learn more about this property
Listing provided by:
Hugh & McKinnon Realty Ltd.
MLS® number:
R3083319
Agent:
Beebe Cline
*Indicates required field
Name is required
Email is required
Please enter a valid phone number (e.g., 416-111-1111).

Street Spotlight - For sale