126 12639 80 Avenue, Surrey, British Columbia V3W 3A6

Listed for:
$25
0 beds
0 baths
Listed 56 days ago
126 12639 80 Avenue, Surrey, British Columbia V3W 3A6

View all 4 photos

About

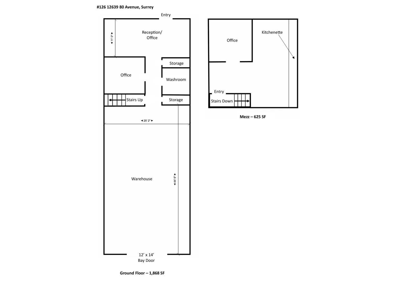
Rare opportunity to lease a 2,493 SF industrial strata warehouse. This unit provides a total of 1,868 SF on the ground floor and a 625 SF fully finished mezzanine with kitchenette. This property is located in the industrial area of Newton, which provides close proximity to a large pool of skilled labor and major arterials such as 88th Avenue (Nordel Way), King George Blvd. 128th street and Highway 1. The ground floor has a 19' clear ceiling height, a washroom on ground floor and 1 grade level door. 2 designated parking spaces. Ideal for a variety of small businesses with a flexible CD zoning. Available for occupancy from April 1, 2026. (id:27476)

Property Highlights

MLS® Number
C8075887
Type
Industrial

Building

Fireplace Present
No
Basement Type
Basement Features
Building Heating Type
Heating Fuel
Building Cooling Type

Location

Learn more about this property
Listing provided by:
Century 21 Coastal Realty Ltd.
MLS® number:
C8075887
Agent:
Ravinder Sooch
*Indicates required field
Name is required
Email is required
Please enter a valid phone number (e.g., 416-111-1111).