6726 133 Street, Surrey, British Columbia V3W 7J6

Listed for:
$935,000
4 beds
2 baths
Listed 50 days ago
House for rent: 6726 133 Street, Surrey, British Columbia V3W 7J6

View all 24 photos

About

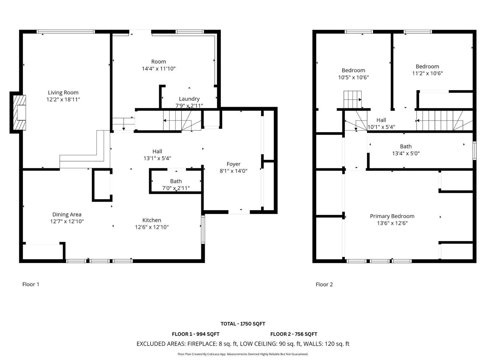
Over 100k below Assessment. Perfect starter home for a family or buy as a great investment. Home is situated on a level lot with a private backyard which backs onto Pioneer Park. This home is within walking distance of both elementary and secondary schools. The home has 4 bedrooms and 2 washrooms, and has the possibility to add a suite to generate income. (id:27476)

Property Highlights

MLS® Number
R3088028
Type
Single Family
Ownership Type
Freehold
Land Size
4002.88 sqft

Building

Building Type
House
Square Footage
1948 sqft
Bathrooms Total
2
Bedrooms Total
4
Fireplace Present
No
Basement Type
None (Unknown)
Basement Features
Unknown
Building Heating Type
Baseboard heaters
Heating Fuel
Electric
Building Cooling Type

Utilities

Water
Municipal water
Utility Sewer
Sanitary sewer, Storm sewer

Location

Learn more about this property
Listing provided by:
eXp Realty of Canada, Inc.
MLS® number:
R3088028
Agent:
Raj Jhajj
*Indicates required field
Name is required
Email is required
Please enter a valid phone number (e.g., 416-111-1111).

Street Spotlight - For sale