7576 140 Street, Surrey, British Columbia V3W 5J8

Listed for:
$1,329,000
6 beds
4 baths
Listed 35 days ago
House for rent: 7576 140 Street, Surrey, British Columbia V3W 5J8

View all 40 photos

About

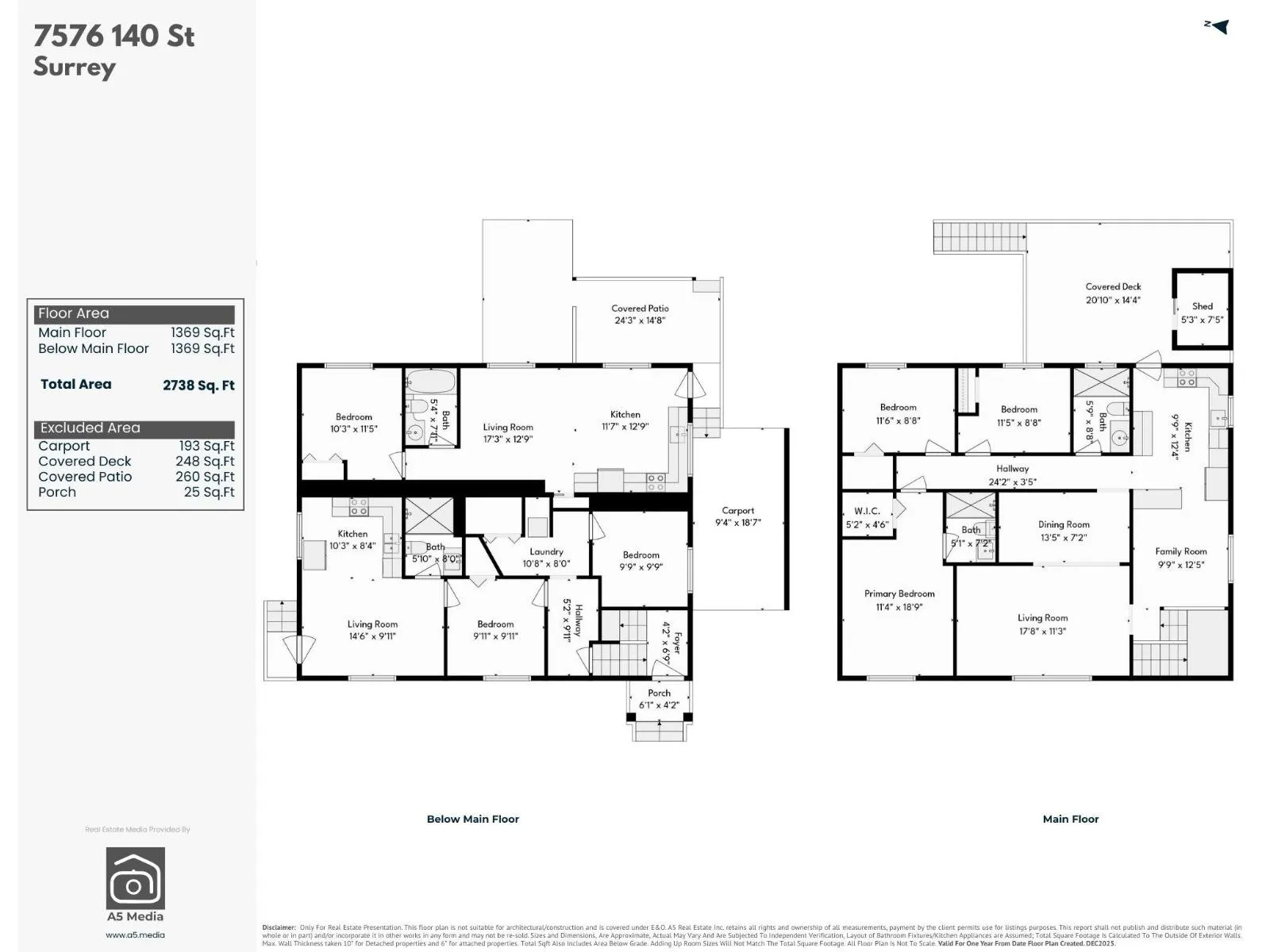
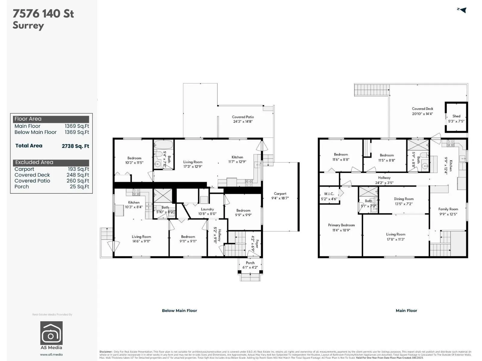
Sitting on a generous 8,092 sq.ft. lot, this extensively updated home offers 7 bedrooms, 4 full bathrooms, 3 kitchens and 2 mortgage-helper suites. Remodelled in 1998 and fully renovated again in 2023 with over $150,000 in upgrades, including new bathrooms, flooring, kitchens, fixtures and paint. Features 2 laundries-one upstairs and one on the ground level. The spacious yard includes 3 apple trees, 1 plum, 1 fig and 2 grape vines. Close to parks, transit and schools; Frank Hurt Secondary and M.B. Sanford are in the catchment. (id:27476)

Property Highlights

MLS® Number
R3093358
Type
Single Family
Ownership Type
Freehold
Land Size
8092 sqft
Parking Space Total
4

Building

Building Type
House
Square Footage
2738 sqft
Bathrooms Total
4
Bedrooms Total
6
Fireplace Present
No
Basement Type
Full (Finished)
Basement Features
Unknown
Building Heating Type
Heating Fuel
Natural gas
Building Cooling Type

Utilities

Water
Municipal water
Utility Sewer
Sanitary sewer

Location

Learn more about this property
Listing provided by:
eXp Realty of Canada, Inc.
MLS® number:
R3093358
Agent:
Harvir Sandhu
*Indicates required field
Name is required
Email is required
Please enter a valid phone number (e.g., 416-111-1111).

Street Spotlight - For sale