2725 Gordon Avenue, Surrey, British Columbia V4A 3J2

Listed for:
$1,449,500
2 beds
2 baths
Listed 26 days ago
House for rent: 2725 Gordon Avenue, Surrey, British Columbia V4A 3J2

View all 40 photos

About

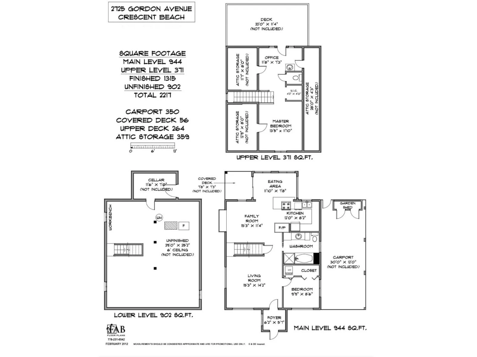
Hottest price in Crescent Beach! Charming & Magical Crescent Beach home, a short walk to the Sea. Beautifully updated & full of character, this 3-level home sits on a rare 5,742 sq.ft. corner lot with lane access & privacy in one of Crescent Beach's best locations. Enjoy trails, eateries & sunsets. Highlights: attic-level primary suite with reclaimed Gastown wood floors & private sundeck; second bedroom on the main plus potential 3rd up. Original fir floors, open-concept & central staircase. Huge fully fenced backyard, art studio plus 2 beachy sheds, 800 sqft deck for outdoor entertaining. Full unfinished basement for storage or future development. Excellent street, carport/shop & driveway parking. Homes like this rarely come up-a truly unique opportunity in an unbeatable seaside location. (id:27476)

Property Highlights

MLS® Number
R3097074
Type
Single Family
Ownership Type
Freehold
Land Size
5742 sqft
Parking Space Total
3

Building

Building Type
House
Square Footage
2217 sqft
Bathrooms Total
2
Bedrooms Total
2
Fireplace Present
Yes
Basement Type
Unknown (Unfinished)
Basement Features
Unknown
Building Heating Type
Forced air
Heating Fuel
Building Cooling Type

Utilities

Water
Municipal water
Utility Sewer
Sanitary sewer

Location

Learn more about this property
Listing provided by:
eXp Realty of Canada, Inc.
MLS® number:
R3097074
Agent:
Bonnie Mills
*Indicates required field
Name is required
Email is required
Please enter a valid phone number (e.g., 416-111-1111).