50 8473 163, Surrey, British Columbia V4N 6M7

Listed for:
$3,500
3 beds
3 baths
Listed 10 days ago
Row / Townhouse for rent: 50 8473 163, Surrey, British Columbia V4N 6M7

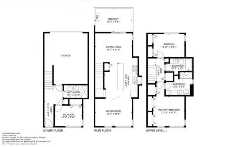
View all 27 photos

About

Welcome to Rockwood's by Anthem! Ideally located just steps to Fraser Highway with excellent transit access and future SkyTrain connectivity. This rare 3-bedroom, ~1,550 sq.ft. townhouse offers a functional and spacious layout, including a full bedroom and bathroom on the ground level. The main floor features: 9' ceilings Wide-plank flooring Open-concept living and dining Contemporary kitchen with large island, granite countertops, and stainless steel appliances Upstairs includes two generously sized bedrooms, each with walk-in closets. Additional features: Side-by-side double garage Tesla EV charging Recently updated flooring and fresh paint Oversized balcony ideal for outdoor use Residents enjoy access to the Rockwood Club amenities including gym, yoga studio, lounge, and playground. (id:27476)

Property Highlights

MLS® Number
R3102211
Type
Single Family
Parking Space Total
2

Building

Building Type
Row / Townhouse
Square Footage
1550 sqft
Bathrooms Total
3
Bedrooms Total
3
Fireplace Present
No
Basement Type
Basement Features
Building Heating Type
Heating Fuel
Building Cooling Type

Location

Learn more about this property
Listing provided by:
RE/MAX City Realty
MLS® number:
R3102211
Agent:
Alex Mazhari
*Indicates required field
Name is required
Email is required
Please enter a valid phone number (e.g., 416-111-1111).