2404 Kenney Street, Terrace, British Columbia V8G 3E3

Listed for:
$880,000
0 beds
0 baths
Listed 179 days ago
2404 Kenney Street, Terrace, British Columbia V8G 3E3

View all 5 photos

About

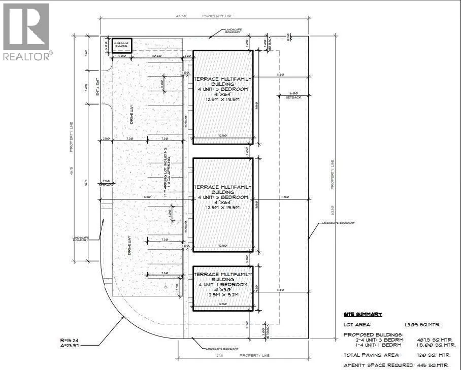
This property has municipal support for up to 12 residential units. Cleared and built up to meet the 200 year flood plane restrictions this lot is well located on Terrace's Southside, just a few blocks from the hospital, and within walking distance to primary schools. This property makes sense and is development ready. Preliminary drawings available upon signing an NDA. (id:27476)

Property Highlights

MLS® Number
R3038411
Type
Vacant Land
Ownership Type
Freehold
Land Size
0.66 ac

Building

Fireplace Present
No
Basement Type
Basement Features
Building Heating Type
Heating Fuel
Building Cooling Type

Utilities

Water
Municipal water

Location

Learn more about this property
Listing provided by:
Royal LePage Aspire Realty (Terr)
MLS® number:
R3038411
Agent:
Rick Mcdaniel
*Indicates required field
Name is required
Email is required
Please enter a valid phone number (e.g., 416-111-1111).