565 Campbell St, Tofino, British Columbia V0R 2Z0

Listed for:
$815,500
2 beds
2 baths
Listed 83 days ago
Row / Townhouse for rent: 565 Campbell St, Tofino, British Columbia V0R 2Z0

View all 6 photos

Learn more about this property
Listing provided by:
Rennie & Associates Realty Ltd.
MLS® number:
1016086
Agent:
Bryan Pudney
*Indicates required field
Name is required
Email is required
Please enter a valid phone number (e.g., 416-111-1111).

About

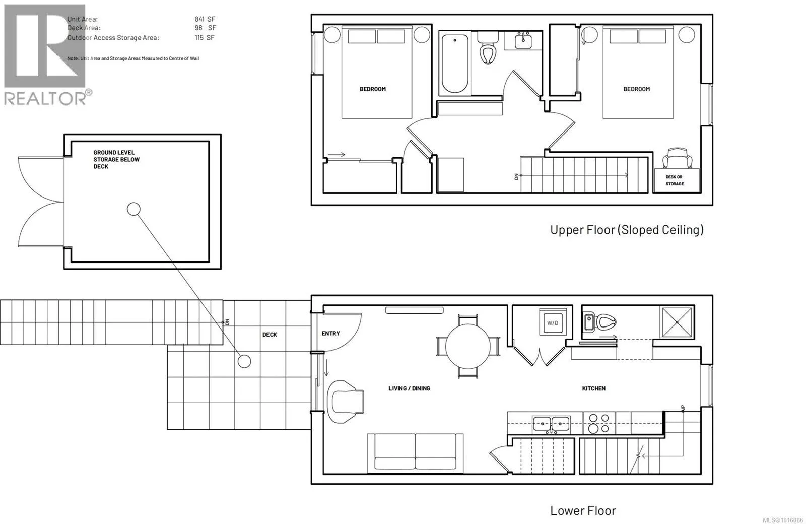
Dawnie brings a stunning collection of 2-bedroom townhomes to Tofino, minutes away from the downtown core. Finally, a space for Tofitians to call home. Practical, durable and quality spaces made with you in mind, and with the hope of bringing back community and connection—the kind where you know your neighbours and can walk to work. Corrugated metal cladding and gable roofs take inspiration from Tofino's working waterfront, giving the homes a sense of familiarity and strength. Large windows and decks open each space to light and fresh air, and generous outdoor storage ensures your surfboards, bikes and outdoor gear always have a space of their own. This unique offering is set to start construction very soon, and the move in date is currently estimated to be early fall 2027. Don't miss out on the newest development to come to Tofino. These wont last! (id:27476)

Property Highlights

MLS® Number
1016086
Type
Single Family
Maintenance Fee
420.00
Ownership Type
Strata
Parking Space Total
1

Building

Building Type
Row / Townhouse
Square Footage
841 sqft
Bathrooms Total
2
Bedrooms Total
2
Fireplace Present
No
Basement Type
Basement Features
Building Heating Type
Baseboard heaters, Heat Pump
Heating Fuel
Building Cooling Type
Partially air conditioned

Location