55 4638 Orca Way, Tsawwassen, British Columbia V4M 0C2

Listed for:
$999,000
4 beds
4 baths
Listed 50 days ago
Row / Townhouse for rent: 55 4638 Orca Way, Tsawwassen, British Columbia V4M 0C2

View all 23 photos

Learn more about this property
Listing provided by:
Royal LePage Regency Realty
MLS® number:
R3067959
Agent:
Mona Lamarche
*Indicates required field
Name is required
Email is required
Please enter a valid phone number (e.g., 416-111-1111).

About

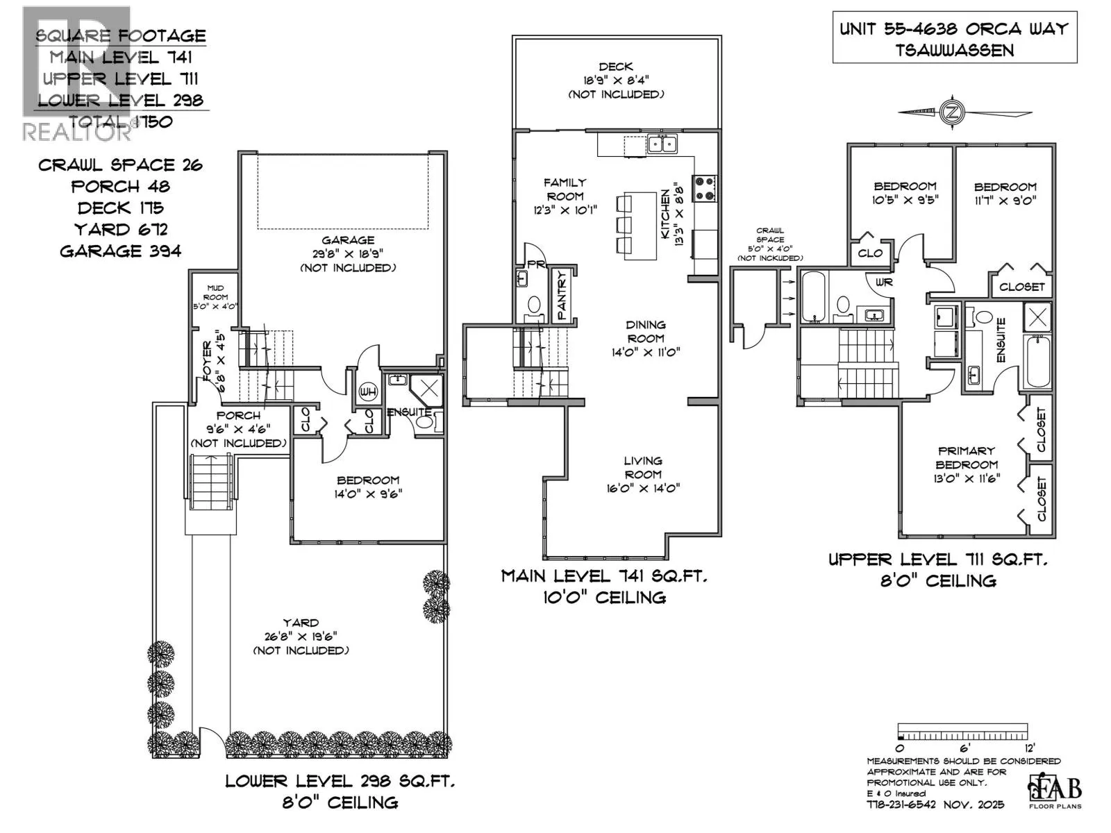
Welcome to this beautiful, bright 1,750 sq.ft. 4-bedroom, 4-bath END unit townhome in one of Tsawwassen´s premier communities - SEASIDE by MOSAIC. This exceptional home features 10 ft. ceilings on the main floor, extra windows for abundant natural light, & a well-planned layout with bathrooms on every level. Upstairs, you´ll find 3 spacious bedrooms, with an additional 4th bedroom on the lower level. Enjoy an open-concept main living area, a double garage, & a fenced yard ideal for kids & pets. Residents have exclusive access to the SEASIDE Amenities Club, offering a swimming pool, fitness centre, party room, & more! SEASIDE is just minutes from Tsawwassen Mills shopping, BC Ferries, Tsawwassen Springs Golf Course, parks, & beautiful beaches. (id:27476)

Property Highlights

MLS® Number
R3067959
Type
Single Family
Maintenance Fee
538.29
Ownership Type
Leasehold Condo/Strata
Parking Space Total
4

Building

Building Type
Row / Townhouse
Square Footage
1750 sqft
Bathrooms Total
4
Bedrooms Total
4
Amenities
Exercise Centre Playground, Golf Course, Recreation, Shopping
Fireplace Present
No
Basement Type
Basement Features
Building Heating Type
Baseboard heaters
Heating Fuel
Building Cooling Type

Location

Street Spotlight - For sale