2 2370 Tofino-ucluelet Hwy, Ucluelet, British Columbia V0R 3A0

Listed for:
$190,000
2 beds
1 baths
Listed 45 days ago
Manufactured Home for rent: 2 2370 Tofino-ucluelet Hwy, Ucluelet, British Columbia V0R 3A0

View all 12 photos

About

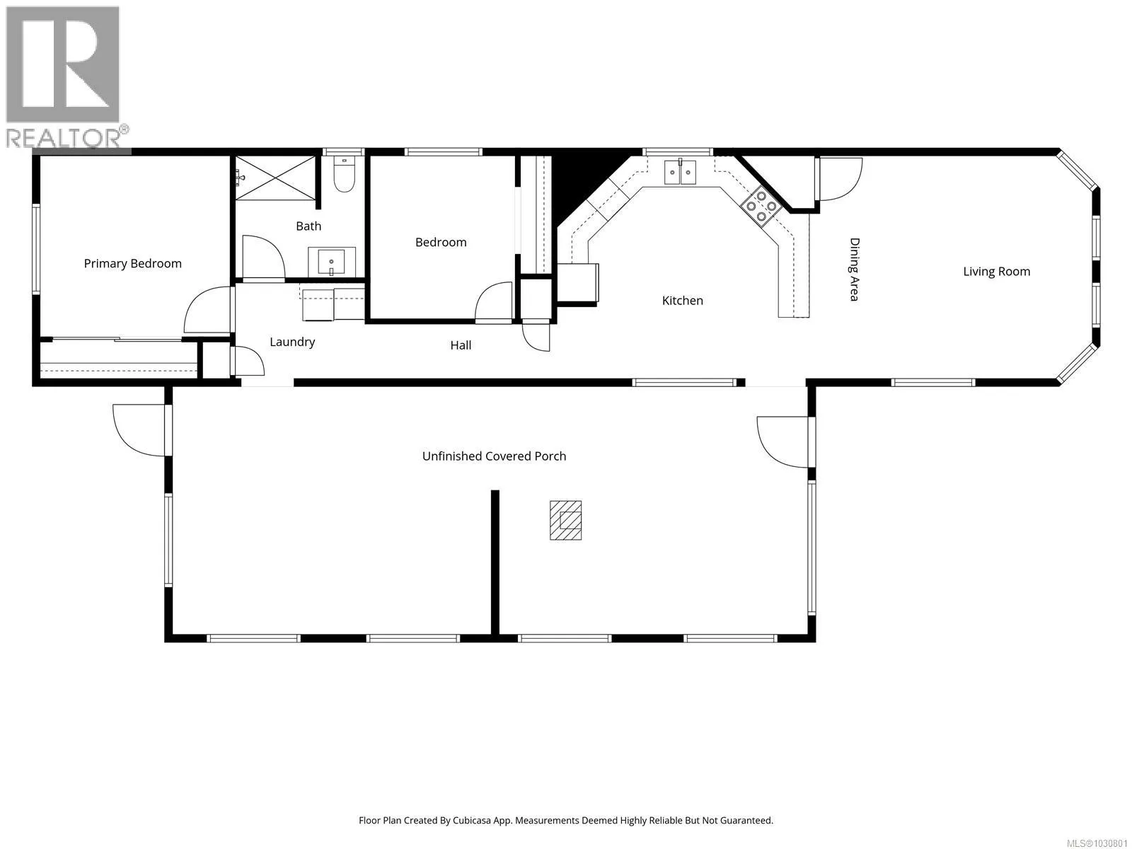
Nestled between Ucluelet and Long Beach, this cozy and affordable 2-bedroom, 1-bath manufactured home is a great opportunity to enter the West Coast market. Built in 1991 and thoughtfully updated with fresh paint, new flooring, and washer & dryer, it offers a solid starting point to bring your own design ideas to life. The 952sqft finished interior features a functional layout with a spacious kitchen, ample storage, propane furnace, and plenty of natural light, plus mountain views. The oversized covered deck expands the living space year-round and includes a WETT-inspected woodstove—perfect for stormy days and cool coastal evenings. Just minutes from beaches, trails, and amenities, this charming home is a practical and inviting way to enjoy West Coast living. Contact your Realtor to book a showing. (id:27476)

Property Highlights

MLS® Number
1030801
Type
Single Family
Maintenance Fee
511.00
Ownership Type
Leasehold
Parking Space Total
1

Building

Building Type
Manufactured Home
Square Footage
960 sqft
Bathrooms Total
1
Bedrooms Total
2
Fireplace Present
Yes
Basement Type
Basement Features
Building Heating Type
Forced air
Heating Fuel
Propane
Building Cooling Type
None

Location

Learn more about this property
Listing provided by:
RE/MAX Mid-Island Realty (Tfno)
MLS® number:
1030801
Agent:
Shannon Chase
*Indicates required field
Name is required
Email is required
Please enter a valid phone number (e.g., 416-111-1111).