6349 Fremlin Street, Vancouver, British Columbia V5Z 3X4

Listed for:
$5,980
5 beds
3 baths
Listed 188 days ago
House for rent: 6349 Fremlin Street, Vancouver, British Columbia V5Z 3X4

View all 27 photos

About

Cozy 5 bedroom 3 bath furnished Oakridge area house for rent! Welcome to our bright and comfortable mid-century style home located in beautiful Oakridge, one of Vancouver´s most family-friendly and convenient neighborhoods. Guests will enjoy the entire upper floor of the house, offering plenty of space and privacy for your group. ?? What You´ll Love o Upper floor only (private entrance) o 5 bedrooms / 3 bathrooms / 8 beds - perfect for families or groups o Spacious and bright living room with mid-century charm o Fully equipped kitchen for home-style cooking o Private backyard area to relax or enjoy the fresh air o Washer & dryer for guest use o Free parking on site ?? Location Highlights We´re right in Vancouver Westside Oakridge, close to everywhere. (id:27476)

Property Highlights

MLS® Number
R2907080
Type
Single Family

Building

Building Type
House
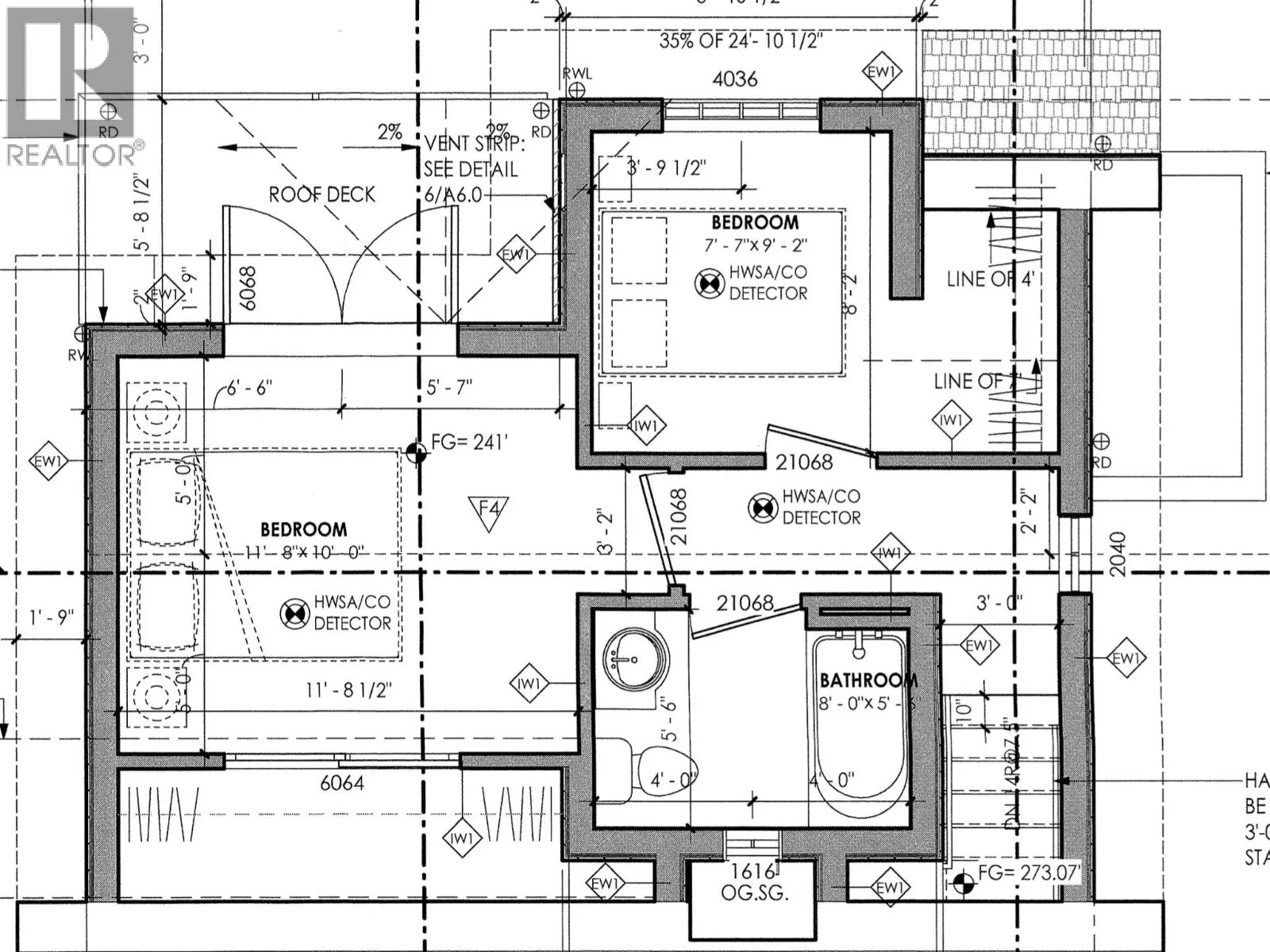
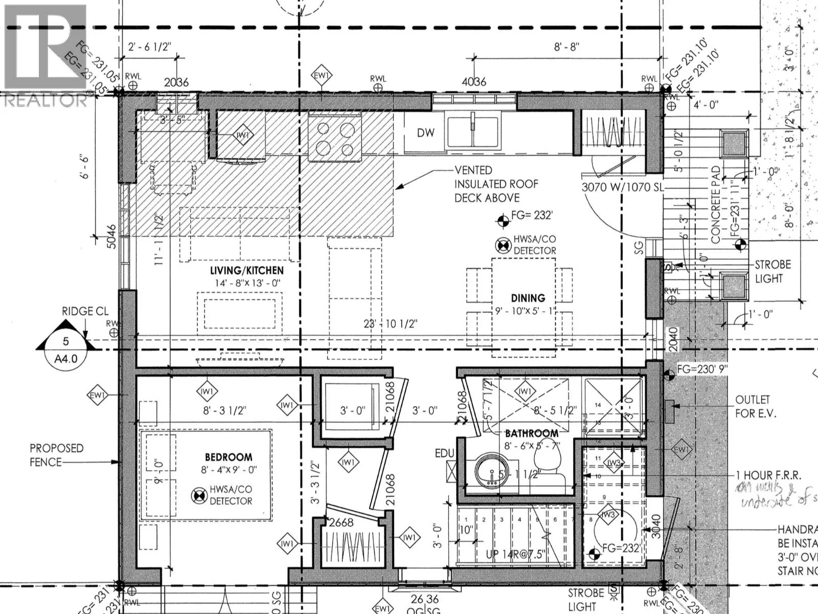
Square Footage
3000 sqft
Bathrooms Total
3
Bedrooms Total
5
Fireplace Present
No
Basement Type
Basement Features
Building Heating Type
Heating Fuel
Building Cooling Type

Location

Learn more about this property
Listing provided by:
Homeland Realty
MLS® number:
R2907080
Agent:
Angelina Lin
*Indicates required field
Name is required
Email is required
Please enter a valid phone number (e.g., 416-111-1111).