17 1861 Beach Avenue, Vancouver, British Columbia V7Y 1B8

Listed for:
$10,000
3 beds
3 baths
Listed 44 days ago
Apartment for rent: 17 1861 Beach Avenue, Vancouver, British Columbia V7Y 1B8

View all 40 photos

Learn more about this property
Listing provided by:
Oakwyn Realty Ltd.
MLS® number:
R3055949
Agent:
Henrietta Tan
*Indicates required field
Name is required
Email is required
Please enter a valid phone number (e.g., 416-111-1111).

About

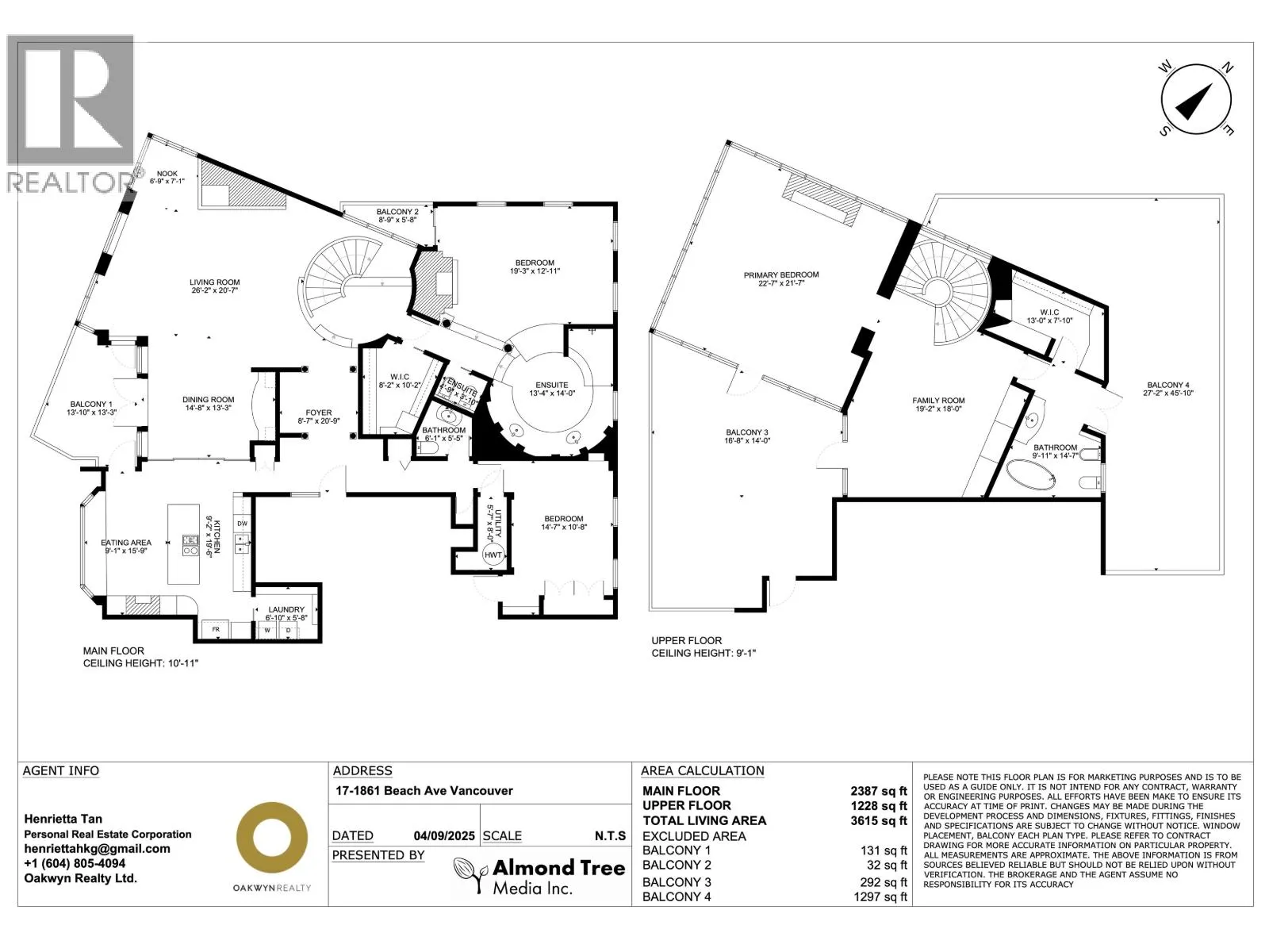
Penthouse perfection in English Bay - This massive 3,621 square ft 2-level Waterfront Penthouse in Vancouver´s iconic Sylvia Tower offers unmatched luxury. With 1 suite per floor and private elevator access, this residence features a timeless, functional layout, floor-to-ceiling windows, high ceiling, and expansive terraces for seamless indoor-outdoor living. Enjoy jaw-dropping, unobstructed panoramic ocean, mountain, and city views-plus front-row seats for fireworks & Magnificent Sunset. Rental is for 6-month and it's rented Furnished. Comes with 2 parking stalls and storage. Here's a video of the suite: https://youtu.be/RUw-qWn2NCg (id:27476)

Property Highlights

MLS® Number
R3055949
Type
Single Family
Parking Space Total
2

Building

Building Type
Apartment
Square Footage
3621 sqft
Bathrooms Total
3
Bedrooms Total
3
Amenities
Furnished
Fireplace Present
No
Basement Type
Basement Features
Building Heating Type
Heating Fuel
Building Cooling Type

Location

Street Spotlight - For rent