119 408 E Kent Avenue, Vancouver, British Columbia R5X 2X7

Listed for:
$19
0 beds
0 baths
Listed 123 days ago
119 408 E Kent Avenue, Vancouver, British Columbia R5X 2X7

View all 4 photos

About

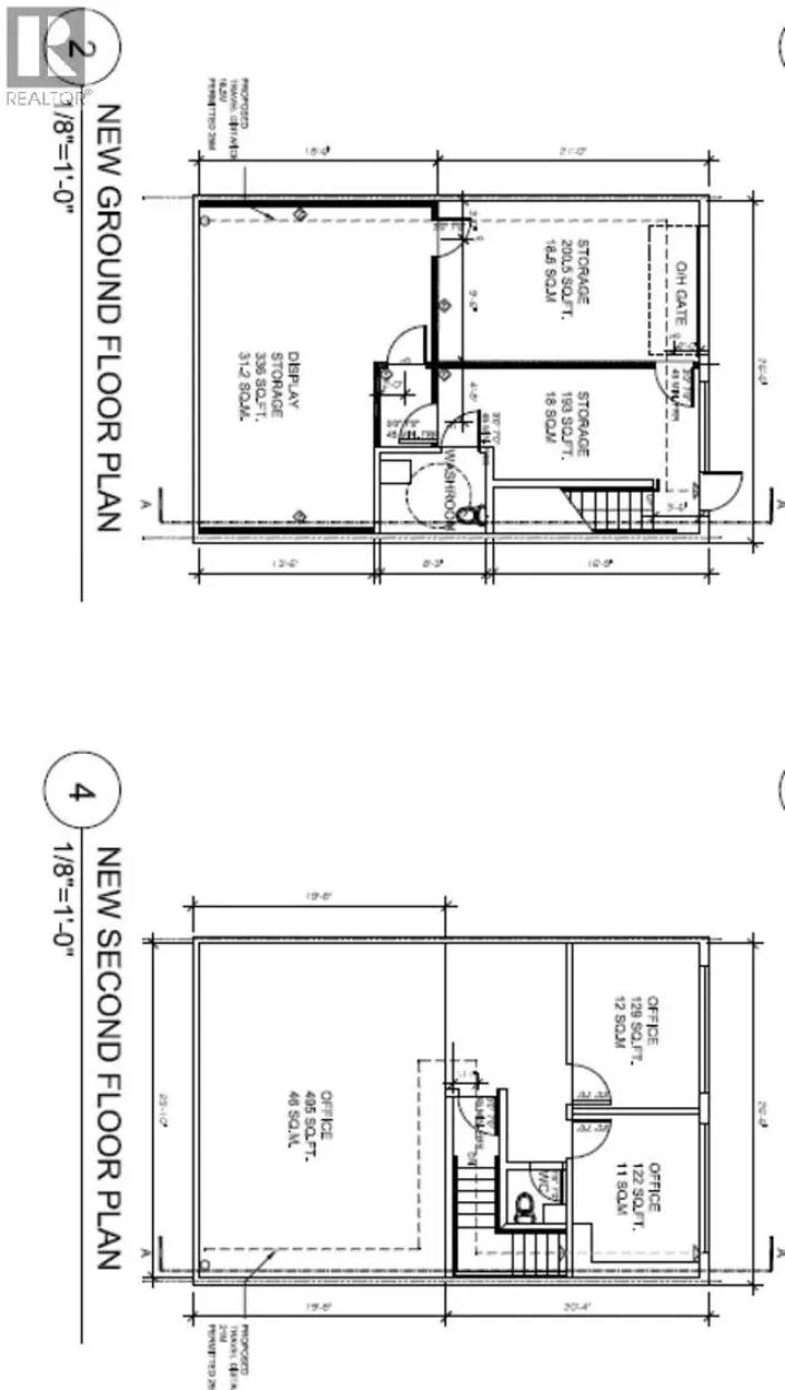
Pleased to showcase this opportunity to lease unit 119 of 408 E Kent Ave South waterfront in the Foreshore Business Park. The premises is located on the south side of E Kent Ave South between Main St. and St. George St. It is strategically located in the convenient and bustling area of South Vancouver, taking only 1 min to SE Marine Drive, 4 min drive to Marine Gateway. The unit size is approx 2,228 sqft including 869 sqft of second floor mezzanine and 1,359 sqft of ground floor, also the unit comes with 3 parking stalls and 1 grade loading door. Ceiling height 10 ft - 19 ft allows various use of production, manufacturing, storage, and office use. (id:27476)

Property Highlights

MLS® Number
C8075251
Type
Industrial
Maintenance Fee
0.00

Building

Fireplace Present
No
Basement Type
Basement Features
Building Heating Type
Heating Fuel
Building Cooling Type

Location

Learn more about this property
Listing provided by:
Sutton Group-West Coast Realty
MLS® number:
C8075251
Agent:
Michael Mihaylov
*Indicates required field
Name is required
Email is required
Please enter a valid phone number (e.g., 416-111-1111).