3668 W 35th Ave, Vancouver, British Columbia V6N 2N7

Listed for:
$8,500
5 beds
4 baths
Listed 42 days ago
House for rent: 3668 W 35th Ave, Vancouver, British Columbia V6N 2N7

View all 13 photos

About

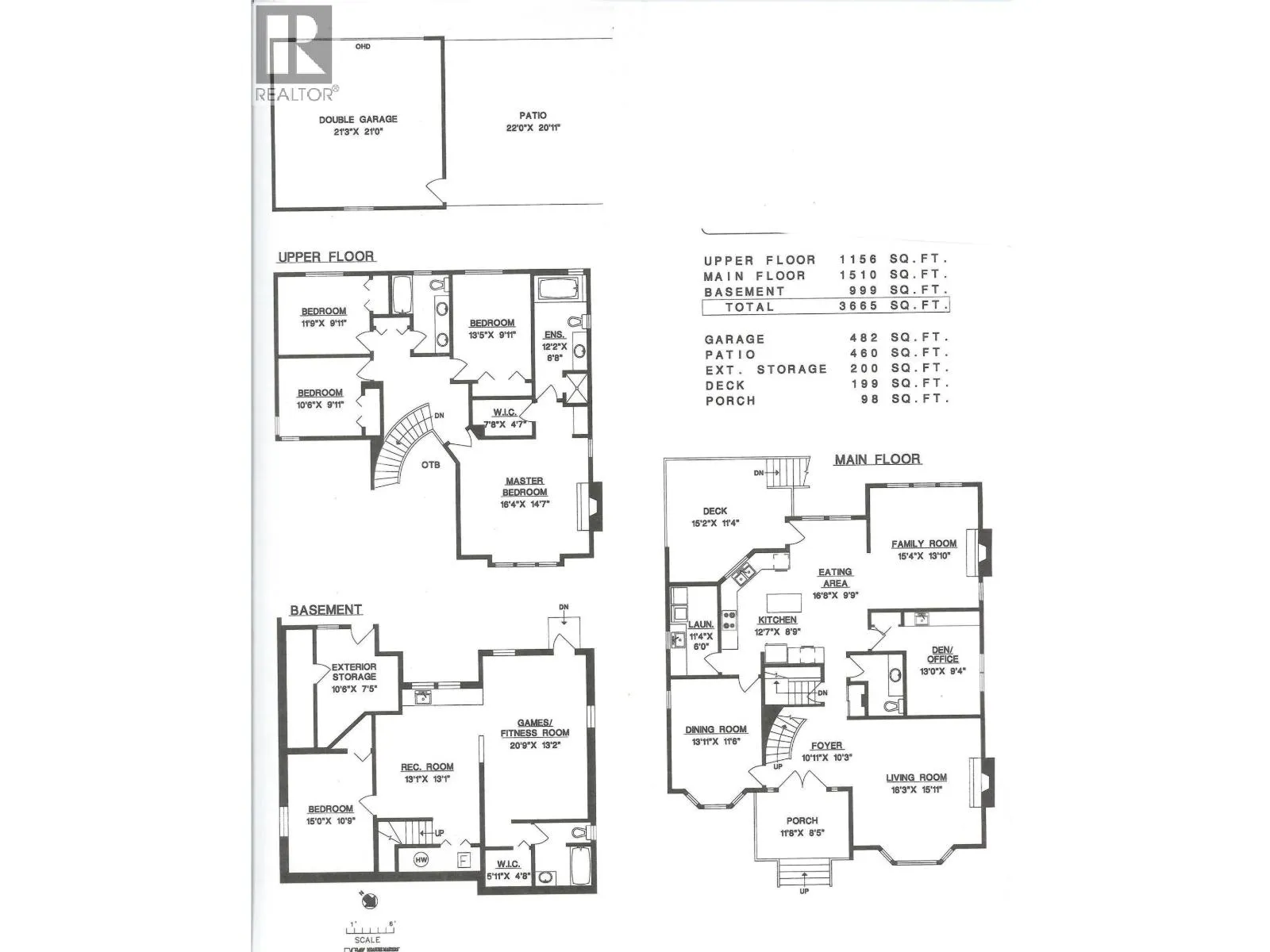
Located in the highly sought-after Dunbar neighborhood, this spacious south-facing 5-bedroom, 4-bathroom family home offers bright, functional living in a quiet, tree-lined setting. The main floor features generous living and dining areas filled with natural light, a well-appointed kitchen with ample cabinetry and modern appliances, and a cozy eating area that opens to a private, fully fenced backyard. Upstairs includes well-sized bedrooms and a spacious primary suite with ensuite. The lower level provides flexible space for recreation, guests, or a home office. Double garage with additional driveway parking. Close to Southlands Elementary, Point Grey Secondary, St. George´s, Crofton House, UBC, Pacific Spirit Park, and Dunbar shopping. (id:27476)

Property Highlights

MLS® Number
R3091308
Type
Single Family
Parking Space Total
2

Building

Building Type
House
Square Footage
3740 sqft
Bathrooms Total
4
Bedrooms Total
5
Amenities
Laundry - In Suite
Fireplace Present
No
Basement Type
Basement Features
Building Heating Type
Heating Fuel
Building Cooling Type

Location

Learn more about this property
Listing provided by:
RE/MAX Crest Realty
MLS® number:
R3091308
Agent:
Fred Zhang
*Indicates required field
Name is required
Email is required
Please enter a valid phone number (e.g., 416-111-1111).