5620 Neil Road, Vernon, British Columbia V1B 3J5

Listed for:
$1,699,000
8 beds
9 baths
Listed 173 days ago
House for rent: 5620 Neil Road, Vernon, British Columbia V1B 3J5

View all 99 photos

About

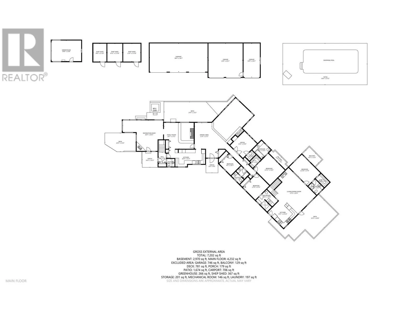
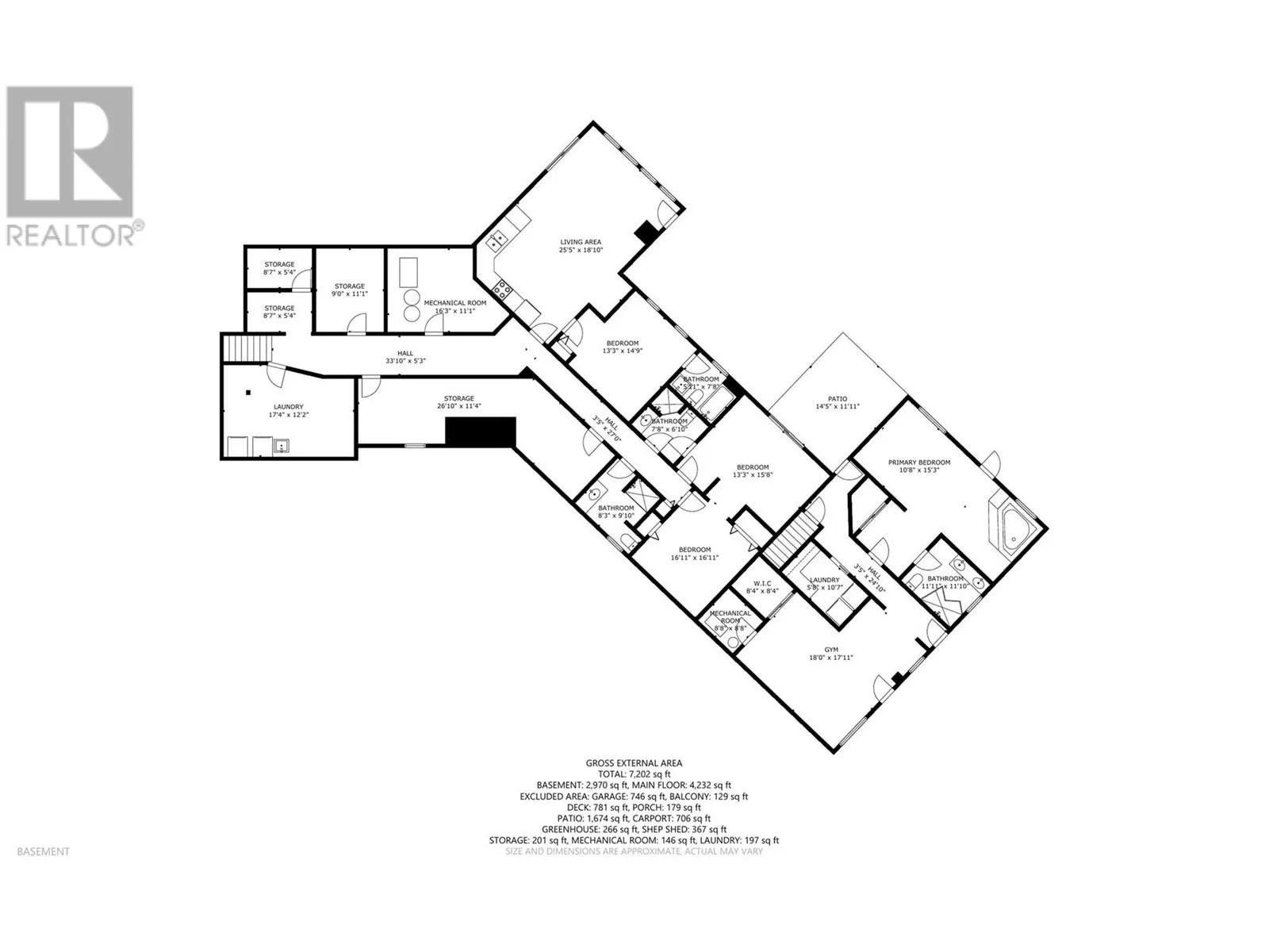
Rare and private BX acreage on a dead end road offered for sale with Okanagan valley views from all angles and features an attached secondary dwelling plus in-law suite just minutes to Vernon. With the 2 dwellings + in-law suite, your multi-generational and income generating options are fantastic. From long term rentals to short term (bylaw dependent) or even event hosting this property can accommodate many income generating ideas. The property has over 4 acres of usable fenced land and an in-ground pool with stunning valley views as you enjoy the Okanagan weather. Plenty of parking for your RV, toys and more, with a detached triple garage and triple carport. Main house is approximately 5,500' and offers 6 bedrooms + den, and 5 bathrooms. Vaulted ceilings, large kitchen, plenty of windows for natural light, multiple fireplaces and fantastic spacious living areas for hosting. Walk out to the large deck to enjoy the beautiful views. Secondary attached home (added later) is approximately 2,000' with 2 bedrooms (option for 3rd) and 3 bathrooms and a great covered deck and double carport for totally separate living. The in-law suite in the main house is approximately 750' with 1 bedroom and 1 bathroom with separate entrance. Property has been very well maintained with too many upgrades to list but include metal roof, recently replaced windows and doors, decking, garage roof, flooring, and much more. (Not listed in the ALR.) (id:27476)

Property Highlights

MLS® Number
10339770
Type
Single Family
Ownership Type
Freehold
Land Size
4.45 ac|1 - 5 acres
Parking Space Total
3

Building

Building Type
House
Storeys
2.00
Square Footage
8256 sqft
Bathrooms Total
9
Bedrooms Total
8
Fireplace Present
Yes
Basement Type
Basement Features
Building Heating Type
Forced air, See remarks
Heating Fuel
Building Cooling Type
Central air conditioning

Utilities

Water
Municipal water
Utility Sewer
Septic tank

Room Layout

Full ensuite bathroom
Basement
Measurements not available
Bedroom
Basement
10'8'' x 15'3''
Gym
Basement
18' x 18'
Laundry room
Basement
5'8'' x 10'7''
Bedroom
Basement
17' x 17'
Bedroom
Basement
13'3'' x 15'8''
Full bathroom
Basement
Measurements not available
Full bathroom
Basement
Measurements not available
Full ensuite bathroom
Basement
Measurements not available
Bedroom
Basement
13'3'' x 14'9''
Kitchen
Basement
25'5'' x 18'10''
Storage
Basement
9' x 11'
Laundry room
Basement
17'4'' x 12'2''
Partial bathroom
Main level
Measurements not available
Full ensuite bathroom
Main level
Measurements not available
Bedroom
Main level
11'10'' x 17'4''
Full bathroom
Main level
Measurements not available
Living room
Main level
17' x 25'9''
Kitchen
Main level
13'3'' x 14'10''
Full bathroom
Main level
Measurements not available
Bedroom
Main level
9'1'' x 10'7''
Bedroom
Main level
17'5'' x 17'5''
4pc Ensuite bath
Main level
12'3'' x 12'3''
Primary Bedroom
Main level
14' x 15'5''
Office
Main level
13'2'' x 14'
Dining room
Main level
11'5'' x 17'1''
Kitchen
Main level
25' x 11'2''
Family room
Main level
19'7'' x 17'1''
Recreation room
Main level
26'7'' x 20'2''

Location

Learn more about this property
Listing provided by:
3 Percent Realty Inc.
MLS® number:
10339770
Agent:
Justin Vanderham
*Indicates required field
Name is required
Email is required
Please enter a valid phone number (e.g., 416-111-1111).