7000 Apollo Road Unit# 5 Lot# 5, Vernon, British Columbia V1H 1M2

Listed for:
$290,000
0 beds
0 baths
Listed 31 days ago
Other for rent: 7000 Apollo Road Unit# 5 Lot# 5, Vernon, British Columbia V1H 1M2

View all 26 photos

Learn more about this property
Listing provided by:
Coldwell Banker Executives Realty
MLS® number:
10349465
Agent:
Hank Prebushewski
*Indicates required field
Name is required
Email is required
Please enter a valid phone number (e.g., 416-111-1111).

About

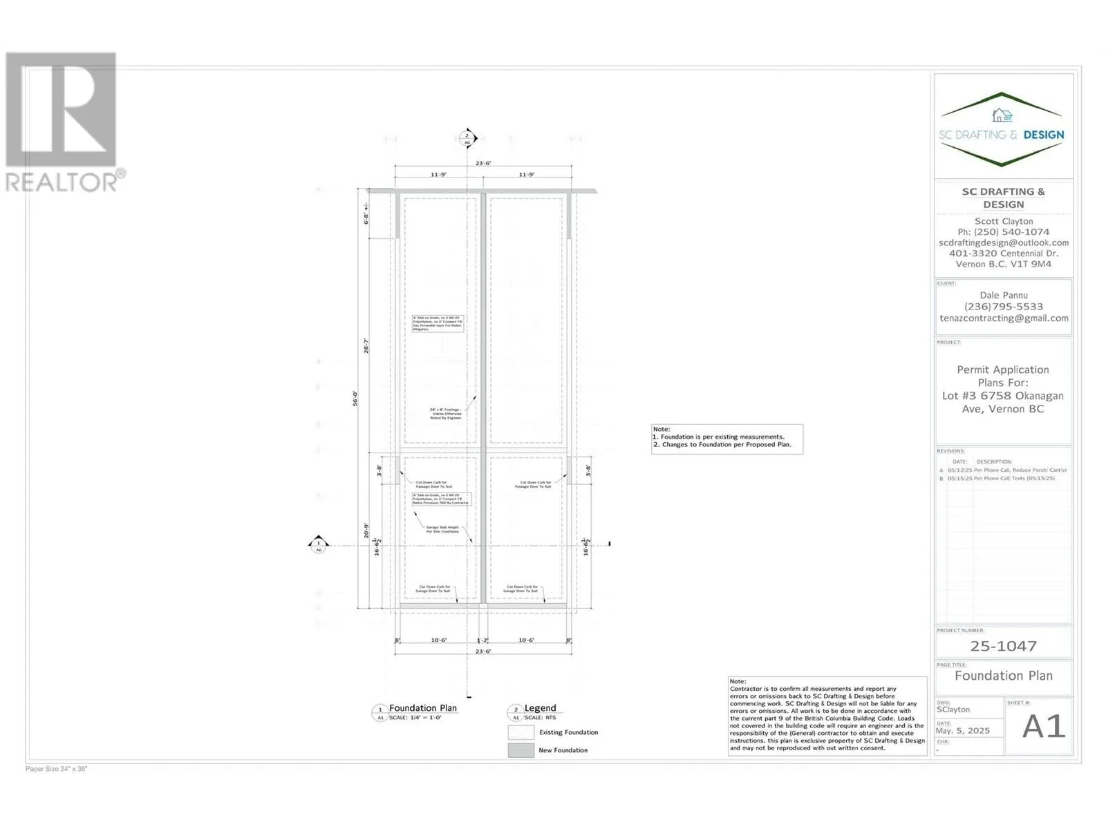
Excellent opportunity for builders or investors! Strata Lot 5 is a fully serviced, walk-up ready lot in a prime Vernon location—just a 10-minute walk to Okanagan Lake and directly across from Marshall Fields and the Vernon Recreation Centre. Zoned for secondary suites, this property is ideal for adding a mortgage helper or maximizing rental income. A new duplex concept design is available, featuring a mirrored layout of 3 bedrooms and 2 bathrooms per side, each with a 234 sq.ft. single-car garage and approximately 1,650 sq.ft. of living space. This is a perfect setup for investors looking to rent out both sides. Flexible build options: bring your own builder or work with ours. Low bare-land strata fees at just $22.64/month. ""Duplex design currently has one Title, the developer plans to dissolve the bare-land strata to townhouse strata in order to split titles."" Contact the listing agent for the full design package and builder options. (The price listed is for the development lot only, concept plans are attached to give an idea of what can be built), (id:27476)

Property Highlights

MLS® Number
10349465
Type
Vacant Land
Maintenance Fee
22.64
Ownership Type
Strata
Land Size
0.08 ac|under 1 acre

Building

Building Type
Other
Fireplace Present
No
Basement Type
Basement Features
Building Heating Type
Heating Fuel
Building Cooling Type

Utilities

Water
Municipal water
Utility Sewer
Municipal sewage system

Location