7005/7013 Manning Place, Vernon, British Columbia V1B 0B6

Listed for:
$1,749,998
8 beds
7 baths
Listed 181 days ago
Duplex for rent: 7005/7013 Manning Place, Vernon, British Columbia V1B 0B6

View all 57 photos

About

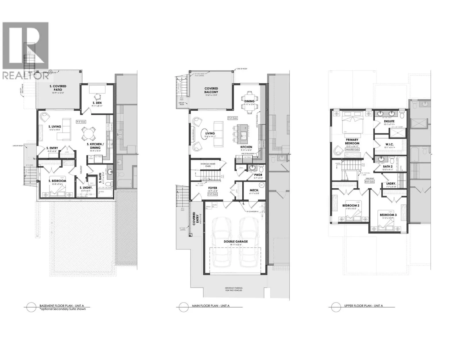
Exceptional Investment Opportunity!!!! This Brand New Full Duplex with 2 Legal suites is Located in the Foothills Newest subdivision at Manning place. Each side has 3 Bedrms on the upper level, Kitchen, Living, Dining on the main level and walk-out basement with 2 bedroom or 1 bedrm+ Den suite, making this a 8/10 bedrm Revenue Propert!!. The open floor plans with electric fireplace, kitchen island & dining off covered sundeck offers the ideal ambiance for entertaining. Upstairs you'll find all 3 bedrms each side. Primary has 4 piece ensuite with heated floor, double vanity & shower, as well as a large walk-in closet. The walk-out basement has 2 bedrooms or 1 bdrm + Den, covered patio and fully self-contained. 2 double garages, fully fenced, landscaped & retaining included. Projected income of $11,000/month ($3500 for main units X 2,$2000 for suites X 2) give this a CAP rate of just over 7%!!! The rural feel, ease of living and convenience to town, schools and the ski hill will appeal to excellent tenants and Owners alike. Great investment & the ease of owning New Construction with Home Warranty for piece of mind!!! GST is applicable. (id:27476)

Property Highlights

MLS® Number
10364381
Type
Single Family
Ownership Type
Freehold
Land Size
0.18 ac|under 1 acre
Parking Space Total
8

Building

Building Type
Duplex
Storeys
3.00
Square Footage
5033 sqft
Bathrooms Total
7
Bedrooms Total
8
Exterior Finish
Stucco
Fireplace Present
Yes
Basement Type
Full
Basement Features
Building Heating Type
Forced air, Heat Pump
Heating Fuel
Building Cooling Type
Central air conditioning

Utilities

Water
Municipal water
Utility Sewer
Municipal sewage system

Room Layout

Other
Second level
10'1'' x 5'1''
Laundry room
Second level
7'7'' x 4'10''
4pc Bathroom
Second level
10'1'' x 4'11''
Bedroom
Second level
11'5'' x 10'9''
Bedroom
Second level
11'8'' x 10'2''
4pc Ensuite bath
Second level
10'1'' x 8'5''
Primary Bedroom
Second level
15'1'' x 13'0''
Other
Second level
10'1'' x 5'1''
Laundry room
Second level
7'7'' x 4'10''
4pc Bathroom
Second level
10'1'' x 4'11''
Bedroom
Second level
11'5'' x 10'9''
Bedroom
Second level
11'8'' x 10'2''
4pc Ensuite bath
Second level
10'1'' x 8'5''
Primary Bedroom
Second level
15'1'' x 13'0''
Other
Lower level
14'1'' x 12'0''
Other
Main level
22'6'' x 18'11''
Other
Main level
6'11'' x 5'8''
Other
Main level
14'1'' x 12'0''
2pc Bathroom
Main level
5'7'' x 5'0''
Foyer
Main level
13'9'' x 5'8''
Dining room
Main level
12'7'' x 9'11''
Living room
Main level
15'1'' x 13'6''
Kitchen
Main level
12'0'' x 9'11''
Other
Main level
22'6'' x 18'11''
Other
Main level
6'11'' x 5'8''
Other
Main level
14'1'' x 12'0''
Partial bathroom
Main level
5'7'' x 5'0''
Foyer
Main level
13'9'' x 5'8''
Dining room
Main level
12'7'' x 9'11''
Living room
Main level
15'1'' x 13'6''
Kitchen
Main level
12'0'' x 9'11''
Kitchen
Additional Accommodation
15'3'' x 10'4''
Other
Additional Accommodation
14'1'' x 12'0''
Bedroom
Additional Accommodation
9'11'' x 8'11''
Other
Additional Accommodation
6'7'' x 6'3''
Full bathroom
Additional Accommodation
10'4'' x 4'11''
Primary Bedroom
Additional Accommodation
10'8'' x 9'5''
Other
Additional Accommodation
6'4'' x 4'2''
Living room
Additional Accommodation
13'2'' x 10'11''
Kitchen
Additional Accommodation
15'3'' x 10'4''

Location

Learn more about this property
Listing provided by:
RE/MAX Vernon
MLS® number:
10364381
Agent:
John Kristian
*Indicates required field
Name is required
Email is required
Please enter a valid phone number (e.g., 416-111-1111).

Street Spotlight - For sale