5000 Silver Star Road Unit# 202 & 203, Vernon, British Columbia V1B 3K3

Listed for:
$13
0 beds
0 baths
Listed 1 day ago
Other for rent: 5000 Silver Star Road Unit# 202 & 203, Vernon, British Columbia V1B 3K3

View all 8 photos

Learn more about this property
Listing provided by:
Venture Realty Corp.
MLS® number:
10367583
Agent:
Lee Levering
*Indicates required field
Name is required
Email is required
Please enter a valid phone number (e.g., 416-111-1111).

About

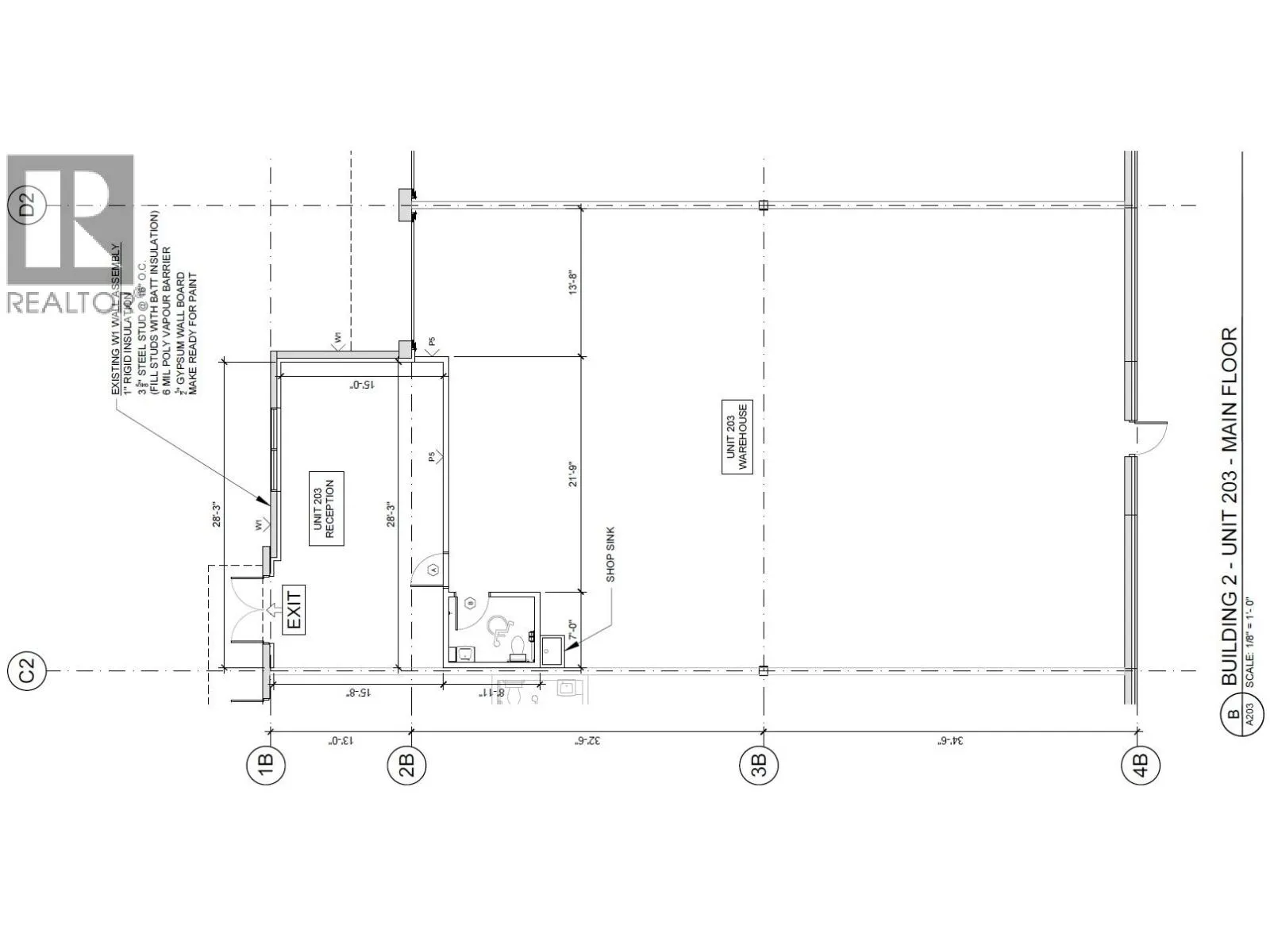
Unit 202/203 at Silver Star Gateway Business Park offers approximately 6,658 square feet of open service commercial warehouse space, with the potential to add a mezzanine or second floor. The unit features one exclusive grade-level loading door (14' x 12'), 24-foot clear ceiling height, motion-sensored LED lighting, and suspended gas-forced heating. This unit also includes a built-in office/showroom and one washroom, providing a functional layout for a variety of business needs. The property benefits from excellent exposure to Silver Star Road and offers ample onsite parking. Available for immediate occupancy. (id:27476)

Property Highlights

MLS® Number
10367583
Type
Industrial
Land Size
under 1 acre

Building

Building Type
Other
Square Footage
6658 sqft
Amenities
Shopping, Ski area
Exterior Finish
Concrete
Fireplace Present
No
Basement Type
Basement Features
Building Heating Type
Radiant/Infra-red Heat, See remarks
Heating Fuel
Building Cooling Type

Utilities

Water
Municipal water
Utility Sewer
Municipal sewage system

Location

Street Spotlight - For lease