1040 Mt Revelstoke Place Unit# 32, Vernon, British Columbia V1B 4E3

Listed for:
$649,900
3 beds
3 baths
Listed 26 days ago
Row / Townhouse for rent: 1040 Mt Revelstoke Place Unit# 32, Vernon, British Columbia V1B 4E3

View all 41 photos

Learn more about this property
Listing provided by:
eXp Realty (Kelowna)
MLS® number:
10370611
Agent:
Deanna Jones
*Indicates required field
Name is required
Email is required
Please enter a valid phone number (e.g., 416-111-1111).

About

Presenting a charming 3-bedroom, 3-bathroom townhome nestled in the prestigious Hawk's Landing community. Impeccably maintained with a level entry and a primary suite on the main floor, this home exudes warmth and elegance. Enjoy stunning panoramic views of the City, Valley, Mountain, and Lake from your top sundeck, creating the perfect setting for outdoor dining and sunset cocktails. The upgraded open-concept kitchen, complete with new countertops and appliances, flows seamlessly into the dining and living areas, providing a wonderful space for entertaining. With modern updates throughout, including a newer furnace, A/C and a double garage, this property effortlessly combines comfort and style. Embrace the tranquil surroundings and convenience of this exceptional home. (id:27476)

Property Highlights

MLS® Number
10370611
Type
Single Family
Community Name
Hawks Landing
Maintenance Fee
340.00
Ownership Type
Strata
Land Size
under 1 acre
Parking Space Total
3

Building

Building Type
Row / Townhouse
Storeys
2.00
Square Footage
1844 sqft
Bathrooms Total
3
Bedrooms Total
3
Exterior Finish
Other
Fireplace Present
No
Basement Type
Basement Features
Building Heating Type
Forced air
Heating Fuel
Building Cooling Type
Central air conditioning

Utilities

Water
Municipal water
Utility Sewer
Municipal sewage system

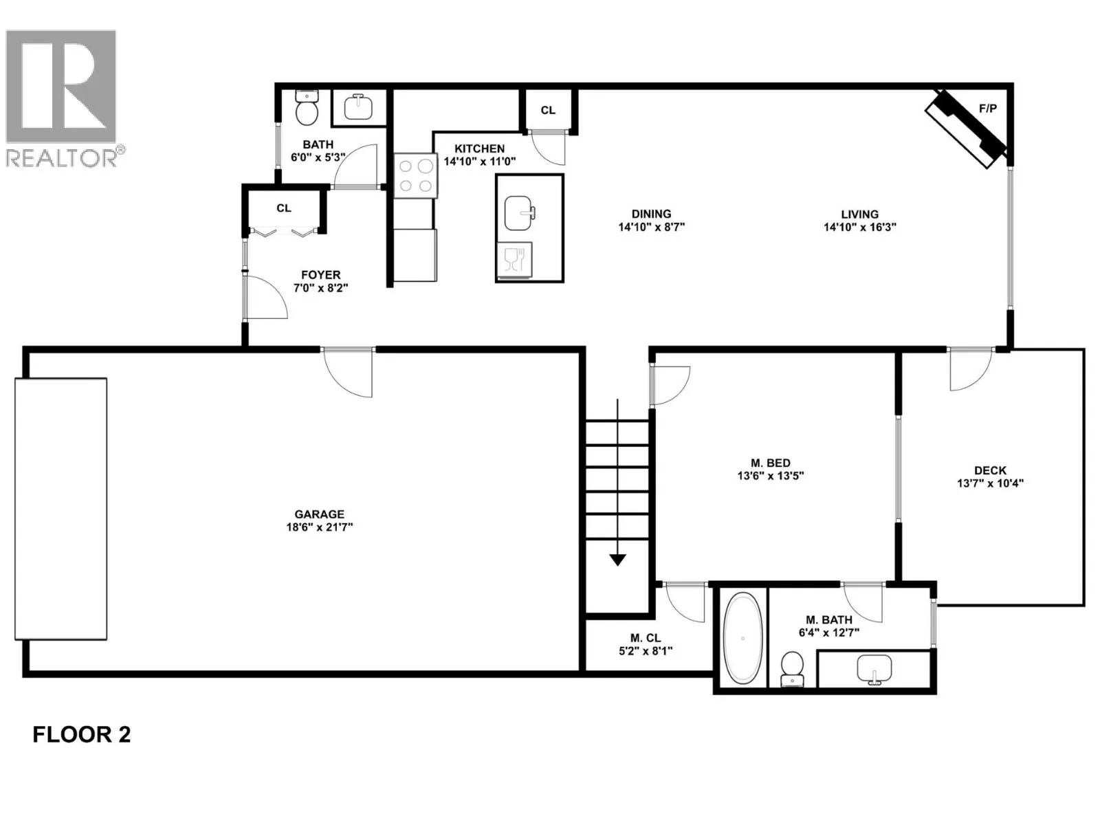
Room Layout

Utility room
Lower level
12' x 9'
4pc Bathroom
Lower level
Measurements not available
Bedroom
Lower level
8'6'' x 8'10''
Bedroom
Lower level
10'4'' x 14'
Family room
Lower level
14'2'' x 20'1''
2pc Bathroom
Main level
Measurements not available
Foyer
Main level
7' x 8'2''
4pc Ensuite bath
Main level
Measurements not available
Other
Main level
5'2'' x 8'1''
Primary Bedroom
Main level
13'6'' x 13'5''
Dining room
Main level
14'10'' x 8'7''
Living room
Main level
14'10'' x 16'3''
Kitchen
Main level
14'10'' x 8'2''

Location