2727 Lakeshore Road Unit# 105, Vernon, British Columbia V1H 1X5

Listed for:
$549,000
2 beds
2 baths
Listed Today
Manufactured Home for rent: 2727 Lakeshore Road Unit# 105, Vernon, British Columbia V1H 1X5

View all 79 photos

About

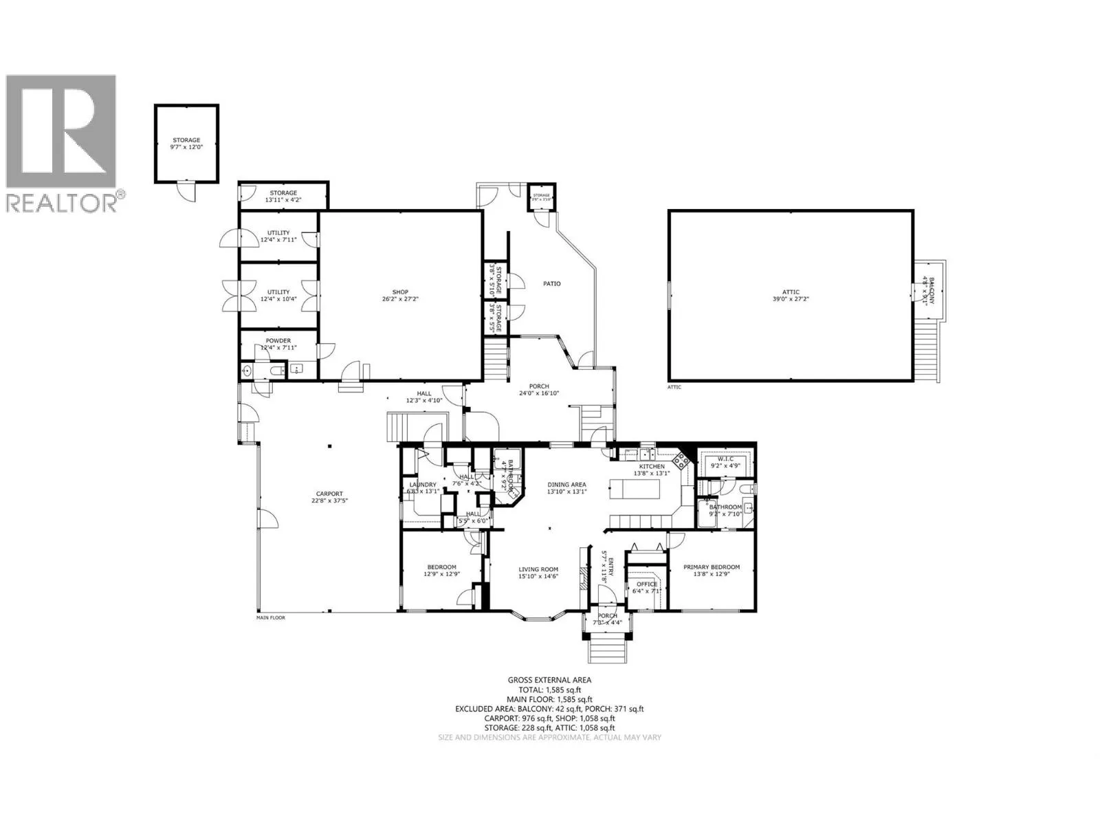
The perfect home and shop package awaits. Immaculate 2006, 1585 sq ft manufactured home in Holiday Park paired with an incredible 1120 sq ft heated shop featuring bathroom, dust collection system, and phenomenal storage - suitable for a wide variety of uses. Impeccably maintained and landscaped, the property offers covered parking, RV parking/full hookups, raised garden beds, gazebo, sheds, and a private covered patio with winter panels for year-round enjoyment. Inside, the open-concept layout provides bright, inviting living space. The custom designed kitchen features an oversized island with eating peninsula, corner pantry, stunning cabinetry - all flooded with natural daylight from the large skylight. Spacious living and dining areas offer seamless access to the covered patio. The primary suite includes a walk-in closet and ensuite. A small office is tucked off the foyer, while the second bedroom features a murphy bed and corner windows. The mudroom/laundry offers built-in desks and cabinetry, with access to the covered breezeway leading to the oversized double carport and shop. A second full bath completes the home. Additional storage can be found in the shop attic, above the carport, and in multiple garden sheds. Lovingly maintained by the original owner, this is a fantastic opportunity to secure a move in ready home with a truly exceptional shop. Just a short walk to the shores of Okanagan Lake and Kin Beach - the complete Okanagan living package awaits. (id:27476)

Property Highlights

MLS® Number
10377281
Type
Single Family
Maintenance Fee
530.64
Land Size
under 1 acre

Building

Building Type
Manufactured Home
Storeys
1.00
Square Footage
1585 sqft
Bathrooms Total
2
Bedrooms Total
2
Amenities
Public Transit, Park, Recreation
Exterior Finish
Vinyl siding
Fireplace Present
No
Basement Type
Basement Features
Building Heating Type
Forced air, See remarks
Heating Fuel
Building Cooling Type
Central air conditioning

Utilities

Water
Community Water System
Utility Sewer
Municipal sewage system

Room Layout

Other
Main level
26'2'' x 27'2''
Full bathroom
Main level
4'7'' x 9'2''
Laundry room
Main level
6'8'' x 13'1''
Bedroom
Main level
12'9'' x 12'9''
Storage
Main level
9'2'' x 4'9''
Full ensuite bathroom
Main level
9'2'' x 7'10''
Primary Bedroom
Main level
13'8'' x 12'9''
Office
Main level
6'4'' x 7'1''
Foyer
Main level
5'7'' x 11'8''
Dining room
Main level
13'10'' x 13'1''
Living room
Main level
15'10'' x 14'6''
Kitchen
Main level
13'8'' x 13'1''

Location

Learn more about this property
Listing provided by:
RE/MAX Vernon
MLS® number:
10377281
Agent:
Kimberly Cucheran
*Indicates required field
Name is required
Email is required
Please enter a valid phone number (e.g., 416-111-1111).

Street Spotlight - For sale