9807a Silver Star Road, Vernon, British Columbia V8S 2H9

Listed for:
$677,000
3 beds
2 baths
Listed 72 days ago
Duplex for rent: 9807a Silver Star Road, Vernon, British Columbia V8S 2H9

View all 56 photos

About

A rare opportunity to own a 3 bed, 2 full bathroom turn-key ski-in/ski-out chalet with no strata fees at this price point at SilverStar Mountain Resort. Located on a quiet no-thru street just off the skiway on Spencer Lane, south-facing property offers direct access to the slopes with views toward Tube Town and the Silver Queen Chair. This lower level chalet's layout provides excellent flexibility for personal use or rental income, with the Primary Bedroom designed as a lock-off that allows the chalet to function as two separate units, making it ideal for short-term rentals while still offering private owner space. Recent updates include a new roof, new hot water tank, deck extension with staircase, updated furnishings and an electrical upgrade for the hot tub. This fully furnished property is truly turn-key with a proven rental history and future bookings already in place. Unlike many properties at SilverStar, there are no rental restrictions, giving owners the flexibility to self-manage, use a rental company, short-term rent or simply enjoy the chalet privately. With true ski-in/ski-out access, no strata fees, flexible rental potential and a prime Spencer Lane location, opportunities like this at SilverStar are rare at this price point! (id:27476)

Property Highlights

MLS® Number
10378475
Type
Single Family
Community Name
.
Maintenance Fee
0.00
Ownership Type
Strata
Land Size
0.2 ac|under 1 acre
Parking Space Total
1

Building

Building Type
Duplex
Storeys
1.00
Square Footage
1127 sqft
Bathrooms Total
2
Bedrooms Total
3
Amenities
Recreation, Ski area
Exterior Finish
Vinyl siding
Fireplace Present
No
Basement Type
Basement Features
Building Heating Type
Baseboard heaters
Heating Fuel
Electric
Building Cooling Type
See Remarks

Utilities

Water
Municipal water
Utility Sewer
Municipal sewage system

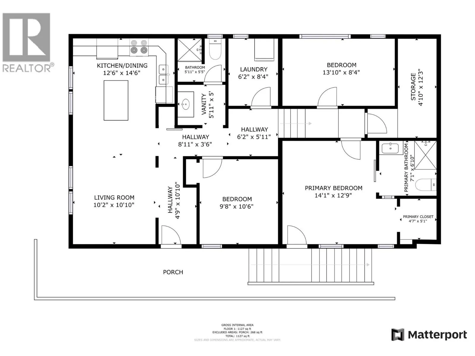
Room Layout

Storage
Main level
12'4'' x 4'10''
Full bathroom
Main level
5'11'' x 5'5''
Bedroom
Main level
10'6'' x 9'8''
Laundry room
Main level
8'4'' x 6'2''
Full ensuite bathroom
Main level
7'1'' x 6'10''
Bedroom
Main level
8'4'' x 13'10''
Primary Bedroom
Main level
12'9'' x 14'1''
Kitchen
Main level
14'6'' x 12'6''
Living room
Main level
10'2'' x 10'10''

Location

Learn more about this property
Listing provided by:
RE/MAX Vernon
MLS® number:
10378475
Agent:
Allison Goff
*Indicates required field
Name is required
Email is required
Please enter a valid phone number (e.g., 416-111-1111).

Street Spotlight - For sale