1601 37th Street, Vernon, British Columbia V1T 6G2

Listed for:
$674,900
4 beds
2 baths
Listed 14 days ago
House for rent: 1601 37th Street, Vernon, British Columbia V1T 6G2

View all 36 photos

About

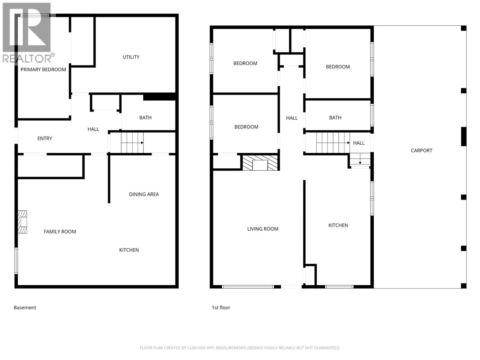
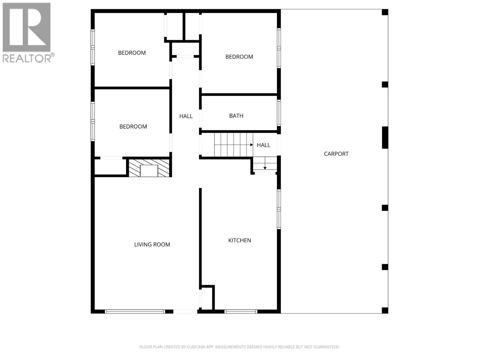
Welcome to this cozy and versatile home, located on a quiet no-through road in a family-friendly neighbourhood, just steps from Mission Hill Elementary School and Mission Hill park. This property is perfectly suited for families, multi-generational living, investors, or those seeking a mortgage helper. The bright and functional main floor features three bedrooms, a bathroom, kitchen, and living room with a gas fireplace, and a large window with a view toward The Rise and the rolling orchards and vineyards of Bella Vista. Downstairs, a fully self-contained one-bedroom, one-bathroom suite offers its own private entrance, separate driveway, and dedicated laundry—ideal for extended family, guests, or potential rental income. In 2016–17, the seller updated the suite, added a 200-amp panel, and completed extensive electrical, plumbing, window, and a gas fireplace upgrade. The AC and HWT were replaced in 2024. Car enthusiasts, hobbyists, or those needing extra parking will appreciate the extended 42-foot drive-through carport, providing access from the front or rear alley, a very practical feature. Step outside to the private fenced backyard with ample space for kids, pets, gardening, or even a trampoline, this outdoor area is ready to suit your lifestyle. With its unbeatable location, income potential, and unique features, this property offers a fantastic opportunity to enjoy the best that Vernon has to offer. Call to arrange your private showing! (id:27476)

Property Highlights

MLS® Number
10379536
Type
Single Family
Ownership Type
Freehold
Land Size
0.2 ac|under 1 acre
Parking Space Total
5

Building

Building Type
House
Storeys
2.00
Square Footage
2078 sqft
Bathrooms Total
2
Bedrooms Total
4
Amenities
Park, Recreation
Exterior Finish
Stucco
Fireplace Present
Yes
Basement Type
Full
Basement Features
Building Heating Type
Forced air, See remarks
Heating Fuel
Building Cooling Type
Central air conditioning

Utilities

Water
Municipal water
Utility Sewer
Municipal sewage system

Room Layout

Laundry room
Lower level
11'0'' x 13'1''
4pc Bathroom
Main level
4'11'' x 10'7''
Bedroom
Main level
9'9'' x 10'7''
Bedroom
Main level
9'11'' x 10'7''
Primary Bedroom
Main level
11'2'' x 10'7''
Dining room
Main level
10'7'' x 11'3''
Kitchen
Main level
9'9'' x 10'7''
Living room
Main level
18'4'' x 14'4''
Dining room
Additional Accommodation
9'4'' x 11'2''
Kitchen
Additional Accommodation
9'1'' x 11'10''
Living room
Additional Accommodation
17'6'' x 12'2''
Full bathroom
Additional Accommodation
4'10'' x 7'6''
Bedroom
Additional Accommodation
14'3'' x 7'7''

Location

Learn more about this property
Listing provided by:
3 Percent Realty Inc.
MLS® number:
10379536
Agent:
Martin Von Holst
*Indicates required field
Name is required
Email is required
Please enter a valid phone number (e.g., 416-111-1111).