1607 43 Avenue Unit# 304 Lot# Sl 10, Vernon, British Columbia V1T 9R9

Listed for:
$449,900
3 beds
3 baths
Listed 13 days ago
Row / Townhouse for rent: 1607 43 Avenue Unit# 304 Lot# Sl 10, Vernon, British Columbia V1T 9R9

View all 18 photos

About

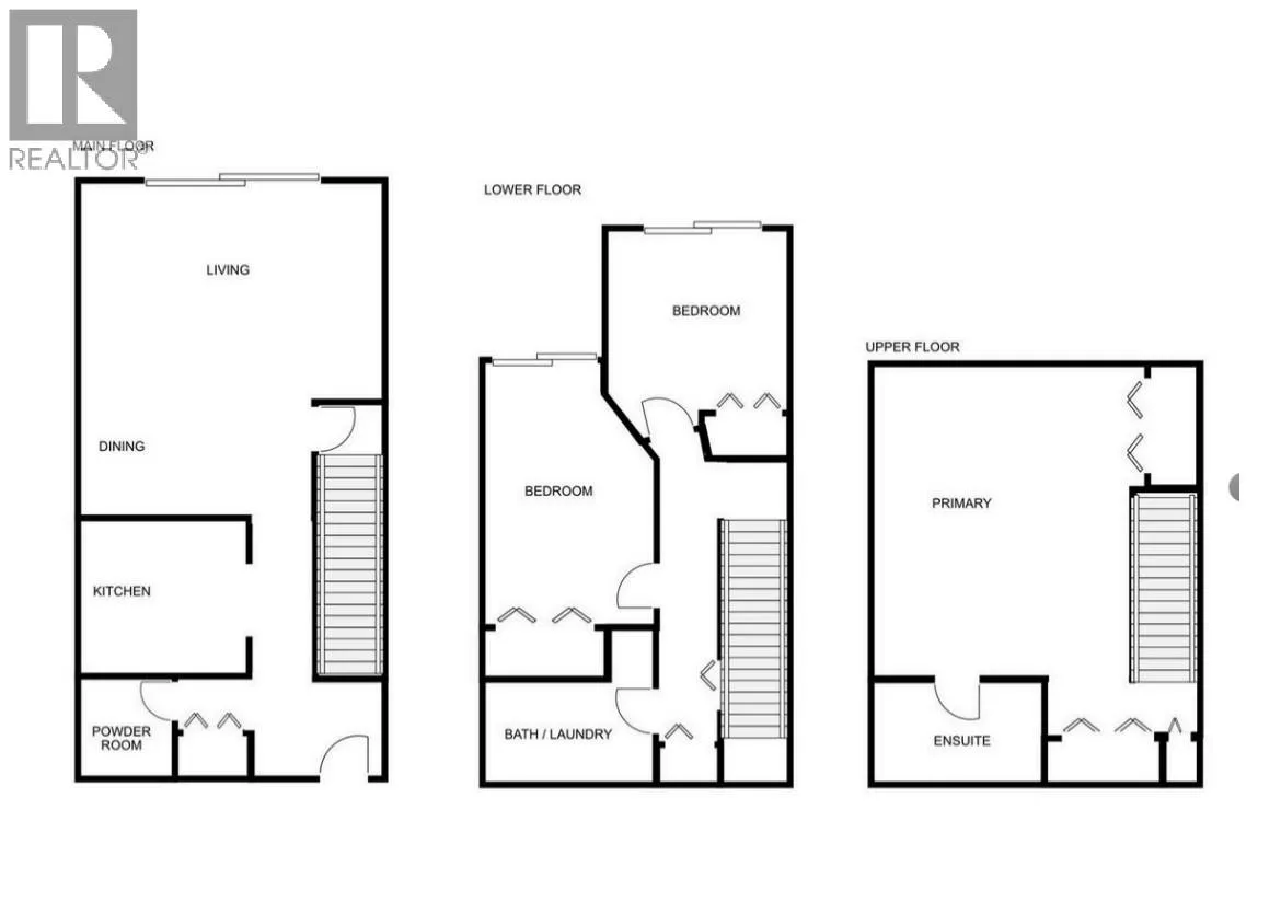
Very unique 3 bedroom, 3 bathroom floorplan. Main floor has kitchen with sit up breakfast bar that opens to Living room with a gas fireplace. Deck overlooks green space. 2 piece powder room. Large Primary bedroom on top level with a full ensuite.is completely on its own for privacy.. The lower level has 2 bedrooms that both lead out to patio. a full bathroom, laundry area and under stairs storage. Nice area and location on City bus route. 2 parking stalls. (id:27476)

Property Highlights

MLS® Number
10377516
Type
Single Family
Community Name
Vernon Springs
Maintenance Fee
336.97
Ownership Type
Strata
Land Size
under 1 acre
Parking Space Total
2

Building

Building Type
Row / Townhouse
Storeys
3.00
Square Footage
1284 sqft
Bathrooms Total
3
Bedrooms Total
3
Exterior Finish
Vinyl siding
Fireplace Present
Yes
Basement Type
Full
Basement Features
Building Heating Type
Baseboard heaters
Heating Fuel
Electric
Building Cooling Type
See Remarks

Utilities

Water
Municipal water
Utility Sewer
Municipal sewage system

Room Layout

4pc Ensuite bath
Second level
Measurements not available
Primary Bedroom
Second level
15'7'' x 12'10''
Bedroom
Basement
8'7'' x 12'10''
4pc Bathroom
Basement
Measurements not available
Bedroom
Basement
9'1'' x 9'4''
2pc Bathroom
Main level
Measurements not available
Kitchen
Main level
8'0'' x 8'7''
Living room
Main level
16'9'' x 15'3''

Location

Learn more about this property
Listing provided by:
Royal LePage Downtown Realty
MLS® number:
10377516
Agent:
Sandra Bradley
*Indicates required field
Name is required
Email is required
Please enter a valid phone number (e.g., 416-111-1111).

Street Spotlight - For sale