4007 Okanagan Avenue, Vernon, British Columbia V1T 1K8

Listed for:
$691,100
4 beds
3 baths
Listed 6 days ago
Duplex for rent: 4007 Okanagan Avenue, Vernon, British Columbia V1T 1K8

View all 46 photos

About

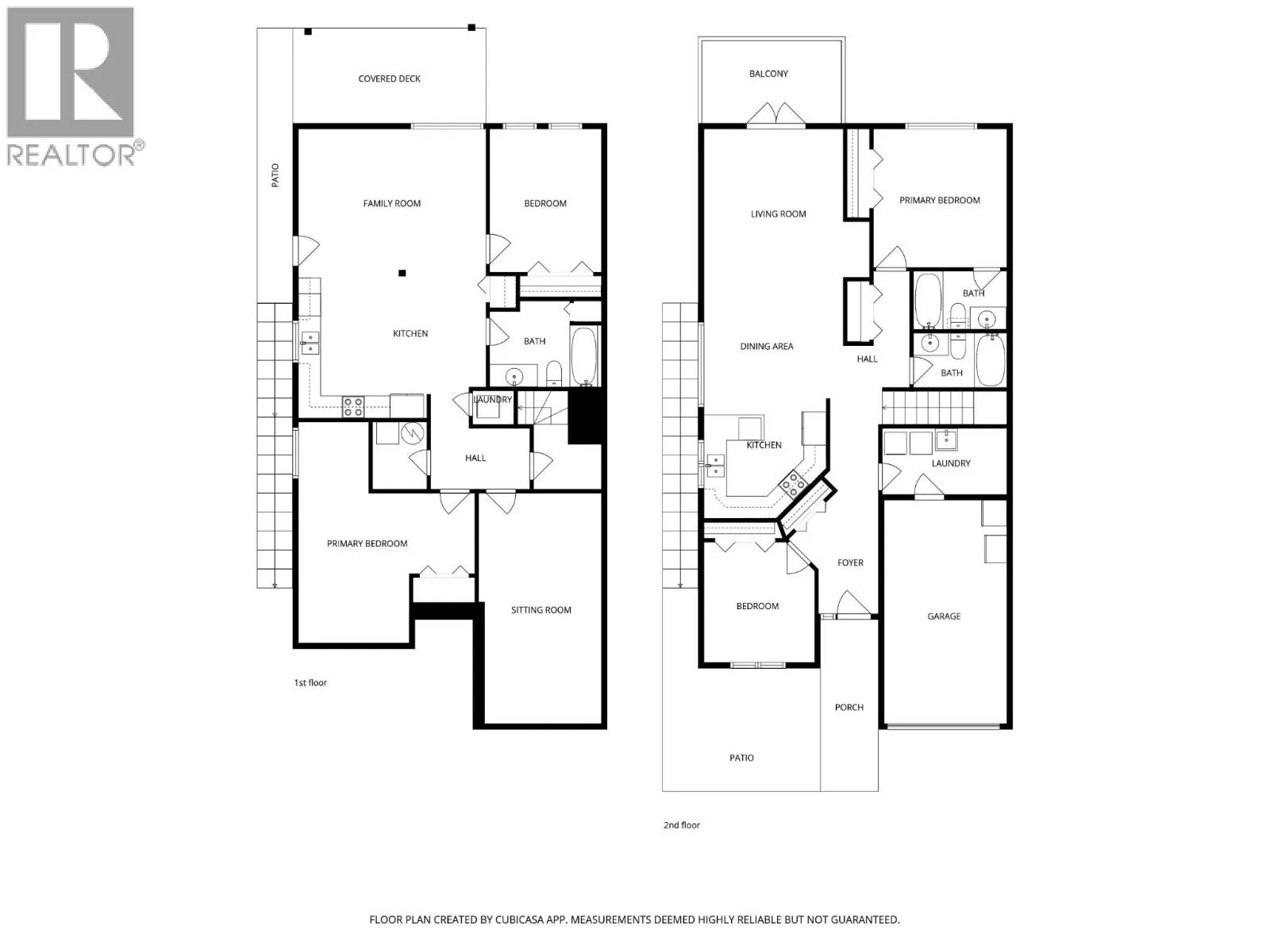
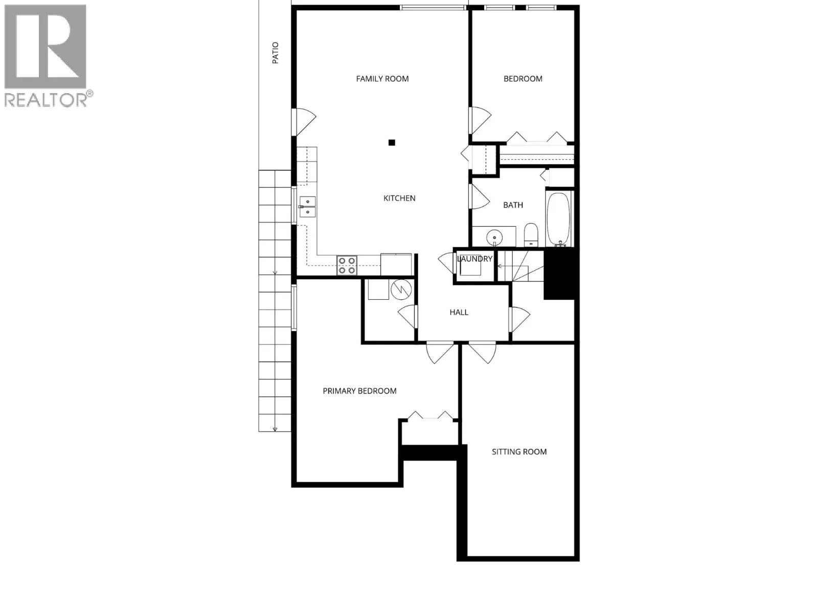
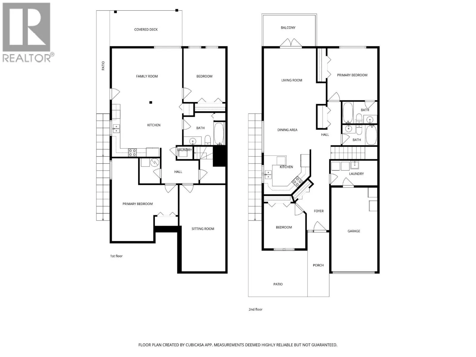
Smart, flexible, and exceptionally well maintained home that delivers on both lifestyle and a financial upside—ideal for investors or buyers looking to offset their mortgage. Live here for less than rent, while investors can project close to $4,000 per month in income. The main level is bright and welcoming, filled with natural light and designed with a functional flow. A spacious primary bedroom with its own ensuite offers comfort and privacy, while thoughtful updates including appliances and newer air conditioner, add lasting value. The large 19'10"" X 10'10"" garage is perfect for storage, shop or hobbies. Outside, you’ll appreciate the ample parking and expansive back yard space—ready to accommodate everything from entertaining to future ideas. The walk out ground level is where the home truly separates itself. A fully updated, self-contained suite features two generous bedrooms and a large media or family room, an uncommon and highly desirable layout at this price point. Whether used for extended family or as a reliable income source, the ease here is significant. Set in a highly convenient location, this property offers low-maintenance living with flexibility that’s increasingly hard to find. Really a standout in its category, a home that continues to impress—floorpan in photos, seeing the value in person is even better. (id:27476)

Property Highlights

MLS® Number
10380640
Type
Single Family
Ownership Type
Freehold
Land Size
0.15 ac|under 1 acre
Parking Space Total
6

Building

Building Type
Duplex
Storeys
2.00
Square Footage
2570 sqft
Bathrooms Total
3
Bedrooms Total
4
Exterior Finish
Vinyl siding
Fireplace Present
No
Basement Type
Full
Basement Features
Building Heating Type
Forced air, See remarks
Heating Fuel
Building Cooling Type
Central air conditioning

Utilities

Water
Municipal water
Utility Sewer
Municipal sewage system

Room Layout

Family room
Lower level
10'2'' x 20'1''
Bedroom
Lower level
14'11'' x 13'8''
Full bathroom
Lower level
9'11'' x 6'11''
Bedroom
Lower level
10'0'' x 12'8''
Living room
Lower level
16'8'' x 12'9''
Kitchen
Lower level
9'7'' x 12'8''
Laundry room
Main level
11'2'' x 5'11''
4pc Bathroom
Main level
8'4'' x 5'0''
4pc Ensuite bath
Main level
8'4'' x 4'11''
Primary Bedroom
Main level
11'11'' x 12'0''
Living room
Main level
12'5'' x 25'3''
Kitchen
Main level
10'5'' x 9'4''
Bedroom
Main level
9'11'' x 9'11''

Location

Learn more about this property
Listing provided by:
Engel & Volkers Okanagan
MLS® number:
10380640
Agent:
Jason Zecchel
*Indicates required field
Name is required
Email is required
Please enter a valid phone number (e.g., 416-111-1111).

Street Spotlight - For sale