A 2001 Douglas St, Victoria, British Columbia V8T 4K9

Listed for:
$19
0 beds
0 baths
Listed 1 day ago
A 2001 Douglas St, Victoria, British Columbia V8T 4K9

View all 7 photos

Learn more about this property
Listing provided by:
Torrent Real Estate Services Inc.
MLS® number:
1011159
Agent:
David Cayo
*Indicates required field
Name is required
Email is required
Please enter a valid phone number (e.g., 416-111-1111).

About

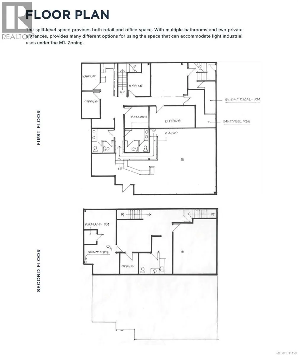
A great opportunity to lease a high profile space on Douglas Street, on the perifery of Downtown. This 4500 square foot space has excellent visibility and signage opportunities on Douglas Street. Large windows on the ground floor bring natural light into the open plan ground floor area. The property benefits from 4 designated parking spaces, with more available if needed. The space is split over two levels, with two private entrances and offers Industrial/Hightech/Retail and office space that can cater to a wide variety of businesses under the M1- Light Industrial Zoning which includes but not limited to: light industries, retail, high-tech, retail with accessory office, professional services, veterinarian, wholesale, and churches/clubs/schools. The space is vacant and easy to view. This property represents a great opportunity to secure high-visibility space. (id:27476)

Property Highlights

MLS® Number
1011159
Type
Industrial
Parking Space Total
4

Building

Fireplace Present
No
Basement Type
Basement Features
Building Heating Type
Heating Fuel
Building Cooling Type

Location