2855 Quesnel St, Victoria, British Columbia V8T 4K2

Listed for:
$19
0 beds
0 baths
Listed 71 days ago
2855 Quesnel St, Victoria, British Columbia V8T 4K2

View all 10 photos

About

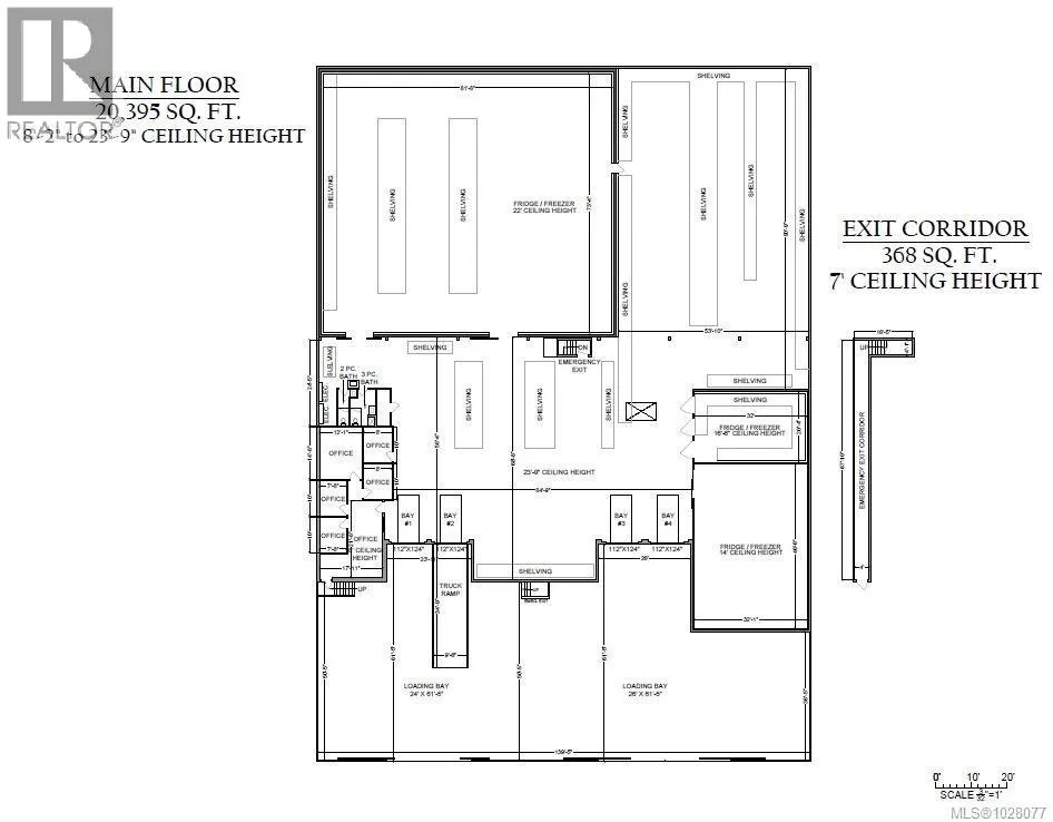
INDUSTRIAL WAREHOUSE OPPORTUNITY (20,395 SF) - Central location with direct access to Highway 1 & 17. Features: Reception, boardroom & 4 private offices; 3 Coolers; 23'9'' ceiling height; 4 loading docks with electric plates; one ramp for cube vans; overhead heat. M2-I Zoning allows for many used including but not limited to: Warehouse, Retail of home furnishings & supplies or sporting goods, Mail order business, Quick freeze lockers, Vehicle sales & rentals, Wholesale, Printing & Publishing and many more! (id:27476)

Property Highlights

MLS® Number
1028077
Type
Industrial

Building

Fireplace Present
No
Basement Type
Basement Features
Building Heating Type
Heating Fuel
Building Cooling Type

Location

Learn more about this property
Listing provided by:
NAI Commercial (Victoria) Inc.
MLS® number:
1028077
Agent:
Ken Featherby
*Indicates required field
Name is required
Email is required
Please enter a valid phone number (e.g., 416-111-1111).