1041 Belmont Ave, Victoria, British Columbia V8S 3T4

Listed for:
$1,369,980
4 beds
3 baths
Listed 10 days ago
House for rent: 1041 Belmont Ave, Victoria, British Columbia V8S 3T4

View all 49 photos

About

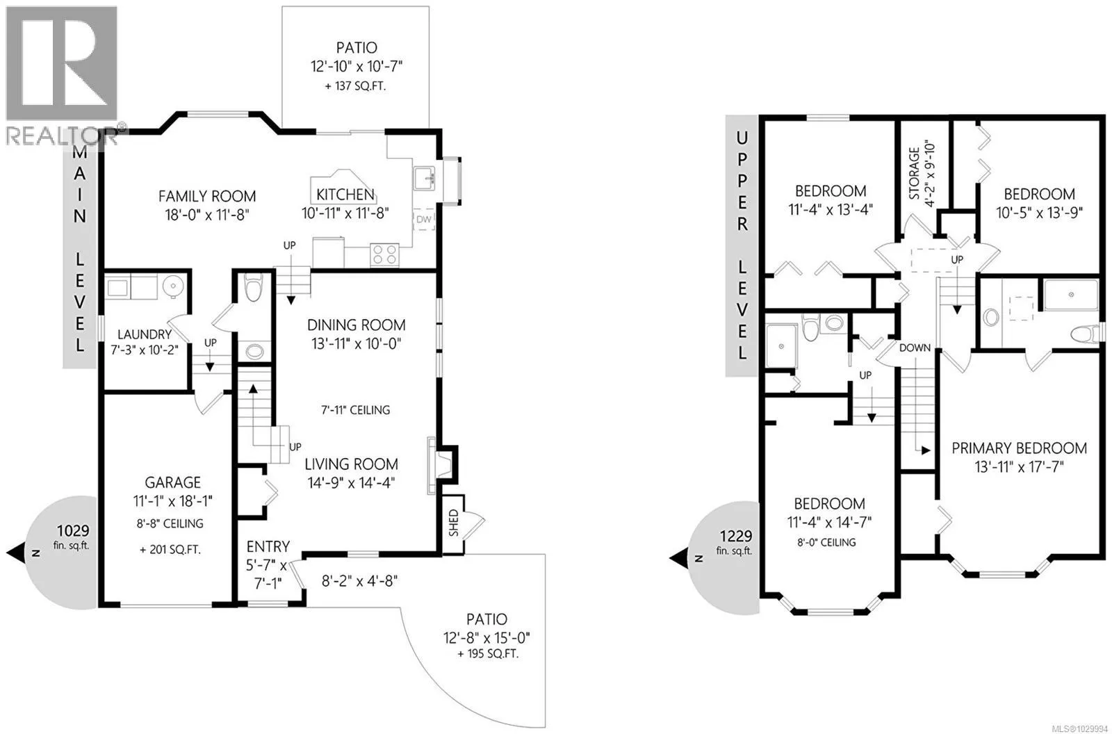
Rare Rockland gem! First time on the market in 30 years. Perched on a hill in a serene, park-like setting, this beautifully custom-built 4-bedroom, 3 bathroom home (1985) showcases thoughtful design and quality construction throughout. Lovingly maintained and updated over the years, the home offers a spacious and functional layout, including a bright living room with a charming wood-burning fireplace, skylights that bring in natural light, and a large primary bedroom complete with ensuite. The kitchen offers ample storage and opens onto a patio, perfect for everyday living and entertaining. A laundry/mud room on the main floor adds convenience, along with a single-car garage. Enjoy the perfect balance of city convenience and peaceful surroundings, with amenities close by while still feeling like a private oasis. Take in stunning sunsets and city lights from the front courtyard or relax in the private backyard with a beautiful patio and easy-care garden. Offering a low-maintenance lifestyle without the constraints of strata living, this is a rare opportunity in one of Rockland’s most sought-after locations. (id:27476)

Property Highlights

MLS® Number
1029994
Type
Single Family
Ownership Type
Freehold
Land Size
5200 sqft
Parking Space Total
3

Building

Building Type
House
Square Footage
2258 sqft
Bathrooms Total
3
Bedrooms Total
4
Fireplace Present
Yes
Basement Type
Basement Features
Building Heating Type
Baseboard heaters
Heating Fuel
Electric
Building Cooling Type
None

Location

Learn more about this property
Listing provided by:
Sutton Group West Coast Realty
MLS® number:
1029994
Agent:
Jaclyn Mcmillan
*Indicates required field
Name is required
Email is required
Please enter a valid phone number (e.g., 416-111-1111).