2678 Cameron Road, West Kelowna, British Columbia V1Z 3K9

Listed for:
$849,990
4 beds
3 baths
Listed 59 days ago
House for rent: 2678 Cameron Road, West Kelowna, British Columbia V1Z 3K9

View all 57 photos

About

OPEN HOUSE SUNDAY MAY 17 12PM to 2PM - Welcome to this fully renovated 4 bedroom (2up/2down), 3 bath rancher style home with basement. Morning sun enters the open concept living/dining room leading directly into the kitchen with upgraded appliances. A formal dining room is set just off of the kitchen, with a large window facing the backyard. The Primary bedroom with ensuite and a large walk-in close has ample space for a King sized bed while still allowing plenty of room for other furnishings. The basement offers a large recreation room, an exercise area off to the side, storage room a full bathroom, and two more bedrooms. Outside, the fully fenced backyard has a fire pit and a raised garden/flower bed ready for planting. There is a gate on the Ross road side at the back for those who need a place to put their RV or boat. The home also has a double attached garage, that offers side entry and direct access to the inside and a properly sized driveway that can fit up to 4 additional vehicles. All of this right in the middle (and within short walking distance) of an Elementary school, Middle school, high school, and Ice rinks. (id:27476)

Property Highlights

MLS® Number
10373838
Type
Single Family
Community Name
NOT APPLICABLE
Maintenance Fee
0.00
Ownership Type
Freehold
Land Size
0.17 ac|under 1 acre
Parking Space Total
7

Building

Building Type
House
Storeys
1.00
Square Footage
2483 sqft
Bathrooms Total
3
Bedrooms Total
4
Amenities
Golf Nearby, Public Transit, Park, Recreation, Schools, Shopping
Exterior Finish
Brick, Vinyl siding
Fireplace Present
Yes
Basement Type
Full
Basement Features
Building Heating Type
See remarks
Heating Fuel
Building Cooling Type
Central air conditioning

Utilities

Water
Municipal water
Utility Sewer
Municipal sewage system

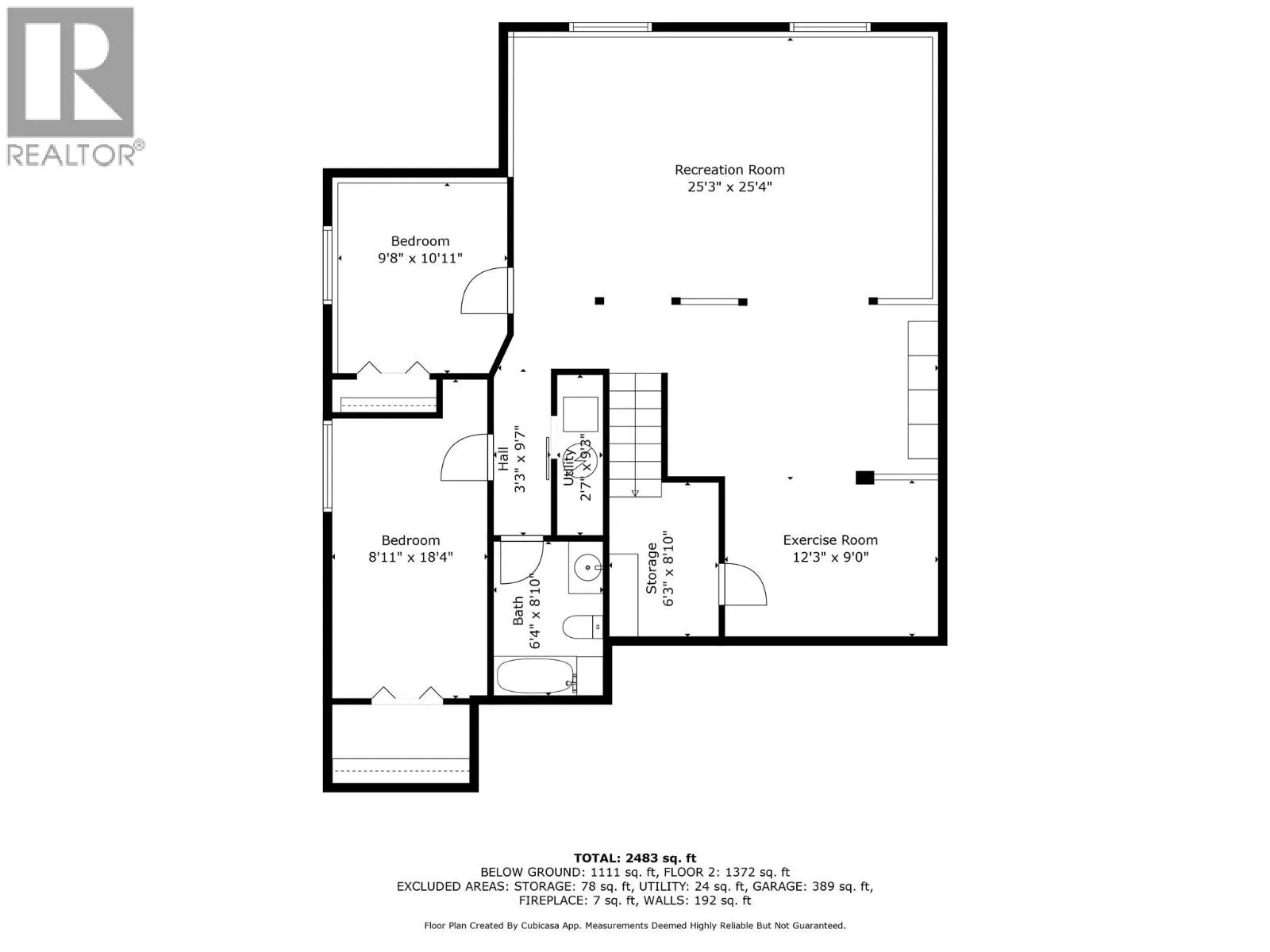
Room Layout

Storage
Basement
8'10'' x 6'3''
Exercise room
Basement
9' x 12'3''
Recreation room
Basement
25'4'' x 25'3''
4pc Bathroom
Basement
8'10'' x 6'4''
Bedroom
Basement
18'4'' x 8'11''
Bedroom
Basement
9'8'' x 10'11''
Sunroom
Main level
11'2'' x 9'2''
Kitchen
Main level
11'7'' x 13'8''
3pc Ensuite bath
Main level
5'2'' x 8'11''
Bedroom
Main level
12'2'' x 11'8''
Dining room
Main level
10'11'' x 12'8''
Living room
Main level
23'8'' x 19'3''
Primary Bedroom
Main level
16'10'' x 12'2''
4pc Bathroom
Main level
4'11'' x 7'9''

Location

Learn more about this property
Listing provided by:
Royal LePage Kelowna
MLS® number:
10373838
Agent:
Rebecca Tobias
*Indicates required field
Name is required
Email is required
Please enter a valid phone number (e.g., 416-111-1111).