2171 Mimosa Drive, West Kelowna, British Columbia V4T 3A5

Listed for:
$539,900
3 beds
2 baths
Listed 31 days ago
Manufactured Home for rent: 2171 Mimosa Drive, West Kelowna, British Columbia V4T 3A5

View all 77 photos

About

Experience refined, no-step living at 2171 Mimosa Drive, a pristine rancher in the sought-after Sage Creek 45+ gated community. This home perfectly balances privacy and connection, featuring two bright bedrooms positioned at the front of the home (one no closet, perfect for an office or hobby room) and a spacious primary on the other end of the home. The open-concept interior is perfect for entertaining, highlighted by a cozy gas fireplace, and natural, light-filled kitchen boasting stone quartz countertops, sleek cabinetry, and BRAND NEW stainless steel appliances (with warranty). The double garage and ample storage provide convenient daily living all year round. During the warmer months, this property boasts a quiet and private yard, mostly fenced (just add gates), pet-friendly and designed for total relaxation, featuring a large, covered gazebo on an aggregate, concrete patio with a small, easy-to-maintain green space. Located just around the corner from the prestigous Two Eagles Golf Course and an easy walk to all amenities including the Westbank shopping hub, wineries, coffee shops, restaurants and beaches. Residents enjoy a premier clubhouse with a fitness center, library, and active social committee. With no Property Transfer Tax or Speculation Tax, this is the perfect spot to call home in the heart of the Okanagan. Book your showing today and write your offer! (id:27476)

Property Highlights

MLS® Number
10380117
Type
Single Family
Community Name
Sage Creek
Ownership Type
Leasehold/Leased Land
Land Size
0.1 ac|under 1 acre
Parking Space Total
4

Building

Building Type
Manufactured Home
Storeys
1.00
Square Footage
1440 sqft
Bathrooms Total
2
Bedrooms Total
3
Amenities
Golf Nearby, Recreation, Shopping
Fireplace Present
Yes
Basement Type
Crawl space
Basement Features
Building Heating Type
Forced air, See remarks
Heating Fuel
Building Cooling Type
Central air conditioning

Utilities

Water
Private Utility
Utility Sewer
Municipal sewage system

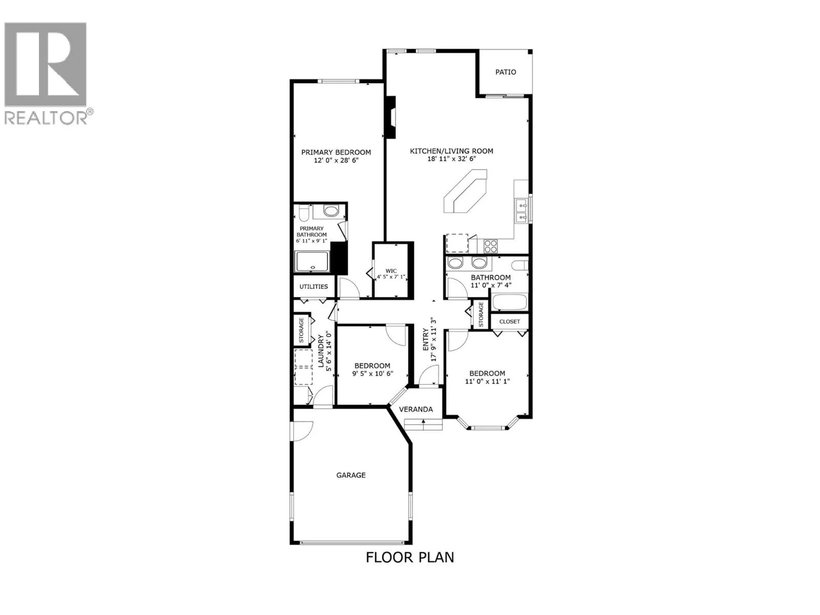
Room Layout

Foyer
Main level
17'9'' x 11'3''
Other
Main level
4'5'' x 7'1''
5pc Bathroom
Main level
11'0'' x 7'4''
3pc Ensuite bath
Main level
6'11'' x 9'1''
Laundry room
Main level
14'0'' x 5'6''
Dining room
Main level
6'3'' x 7'8''
Kitchen
Main level
18'11'' x 10'0''
Bedroom
Main level
10'6'' x 9'5''
Primary Bedroom
Main level
28'6'' x 12'0''
Bedroom
Main level
11'1'' x 11'0''
Living room
Main level
16'3'' x 18'11''

Location

Learn more about this property
Listing provided by:
Century 21 Assurance Realty Ltd
MLS® number:
10380117
Agent:
Justina Leestolz
*Indicates required field
Name is required
Email is required
Please enter a valid phone number (e.g., 416-111-1111).