4670 Willow Creek Road, West Vancouver, British Columbia V7W 1C2

Listed for:
$1,850,000
4 beds
3 baths
Listed 6 days ago
House for rent: 4670 Willow Creek Road, West Vancouver, British Columbia V7W 1C2

View all 24 photos

About

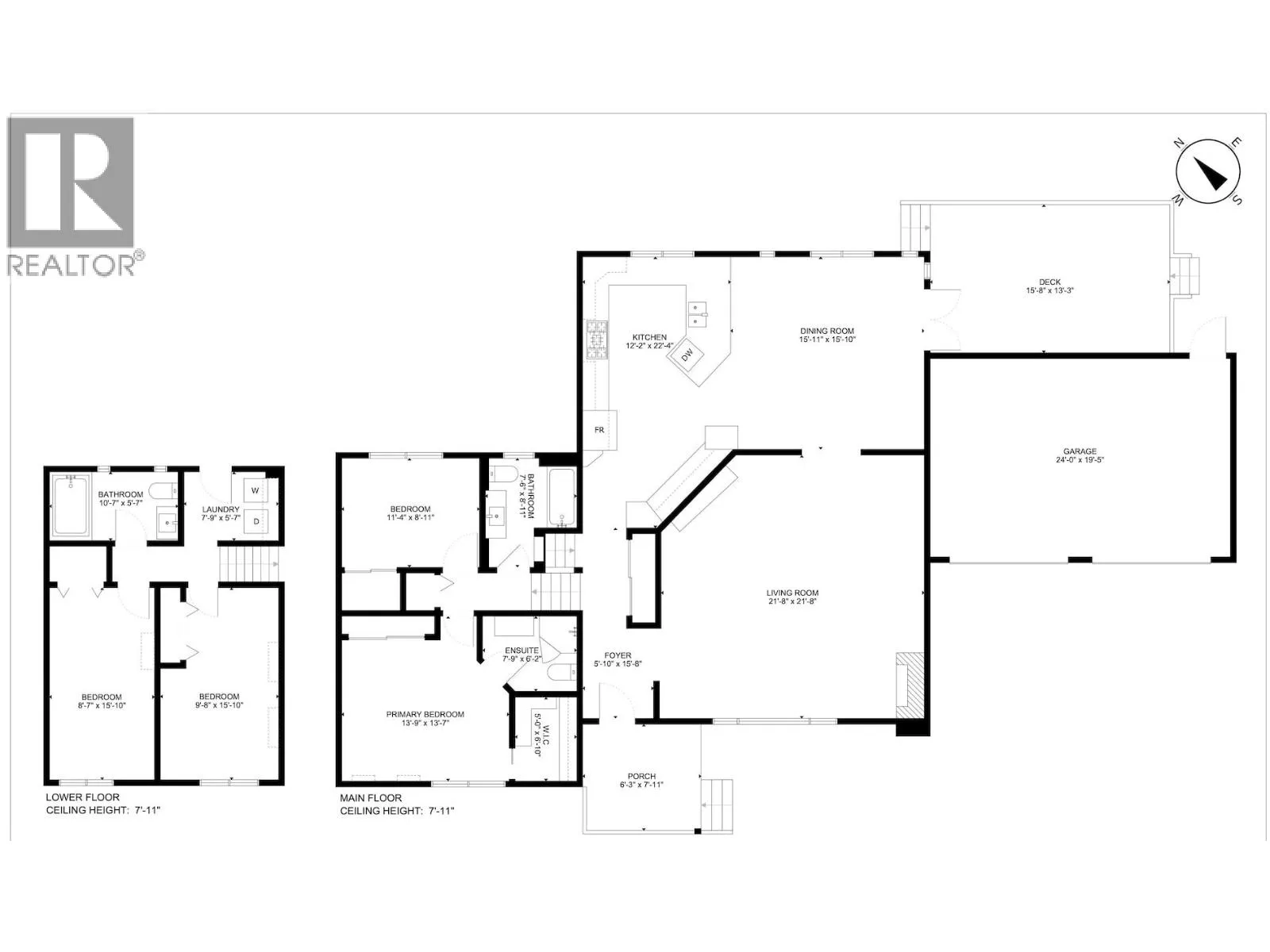
Private, spacious Caulfeild home offering exceptional value for a detached property in this sought-after neighborhood. Built in 1966 and substantially renovated in 1995, this well-maintained residence features 4 bedrooms, 3 full bathrooms, and a functional split-level layout ideal for families or downsizers. Bright living spaces with vaulted ceilings and large picture windows create an airy feel and connect seamlessly to a sunny, private backyard with peaceful garden outlook and spacious deck. Comfortable to move in and enjoy today, with opportunity to personalize over time. Enjoy the freedom of fully detached living with no strata fees or restrictions. Quiet, established location close to Caulfeild Village, schools, parks and trails. (id:27476)

Property Highlights

MLS® Number
R3088320
Type
Single Family
Ownership Type
Freehold
Land Size
13745 sqft
Parking Space Total
4

Building

Building Type
House
Square Footage
2206 sqft
Bathrooms Total
3
Bedrooms Total
4
Amenities
Recreation, Shopping
Fireplace Present
Yes
Basement Type
Unknown (Finished)
Basement Features
Unknown
Building Heating Type
Forced air
Heating Fuel
Building Cooling Type

Location

Learn more about this property
Listing provided by:
eXp Realty
MLS® number:
R3088320
Agent:
Elena Yelizarov
*Indicates required field
Name is required
Email is required
Please enter a valid phone number (e.g., 416-111-1111).