1860 Boucherie Road Unit# 102, Westbank, British Columbia V4T 2A3

Listed for:
$305,000
3 beds
2 baths
Listed 64 days ago
Manufactured Home for rent: 1860 Boucherie Road Unit# 102, Westbank, British Columbia V4T 2A3

View all 45 photos

Learn more about this property
Listing provided by:
Royal LePage Kelowna
MLS® number:
10352887
Agent:
Sharon Walton
*Indicates required field
Name is required
Email is required
Please enter a valid phone number (e.g., 416-111-1111).

About

Quick Possession possible. Welcome to Pineridge Estates located in West Kelowna. This 3 Bedroom 2 bathroom home is close to wineries, shopping, restaurants, recreation, golfing, the lake, beaches the list just goes on!! This cute home comes completely updated featuring new roof(2021)/Hardie board siding/pex plumbing/newer electrical(2021)/ gas furnace and central air conditioning/gas hot water tank/ Newer cabinetry throughout (all soft close). Kitchen cabinetry includes spice drawer and garbage can pullout. Maytag kitchen appliances, quartz countertops, Samsung washer and dryer, LED lighting. Including a perfect little patio to sit and enjoy a glass of wine or cup of tea while taking in the lake view. Perfect for a first time buyer or anyone looking to downsize, this is the one for you! Pets are allowed with park approval, one dog and two cats welcome!! Book your private tour today! (id:27476)

Property Highlights

MLS® Number
10352887
Type
Single Family
Maintenance Fee
650.00
Ownership Type
Leasehold/Leased Land
Land Size
under 1 acre
Parking Space Total
2

Building

Building Type
Manufactured Home
Storeys
1.00
Square Footage
1272 sqft
Bathrooms Total
2
Bedrooms Total
3
Amenities
Golf Nearby, Park, Recreation, Schools, Shopping
Exterior Finish
Other
Fireplace Present
No
Basement Type
Basement Features
Building Heating Type
Forced air, See remarks
Heating Fuel
Building Cooling Type
Central air conditioning

Utilities

Water
Municipal water
Utility Sewer
Municipal sewage system

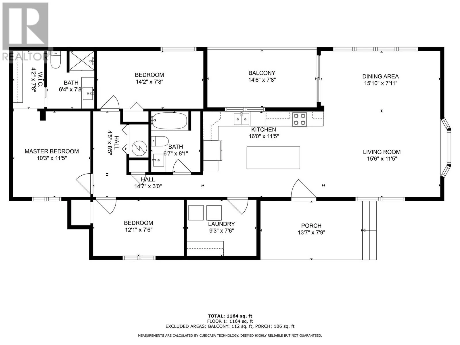
Room Layout

Laundry room
Main level
9'4'' x 7'3''
4pc Bathroom
Main level
8'5'' x 6'4''
3pc Ensuite bath
Main level
7'7'' x 6'9''
Bedroom
Main level
12'2'' x 7'7''
Bedroom
Main level
14'2'' x 7'7''
Primary Bedroom
Main level
11'5'' x 10'3''
Living room
Main level
16'2'' x 11'6''
Dining room
Main level
16'4'' x 7'1''
Kitchen
Main level
16'0'' x 11'6''

Location

Street Spotlight - For sale