1881 Boucherie Road Unit# 28, Westbank, British Columbia V4T 0C9

Listed for:
$89,500
2 beds
1 baths
Listed Today
Manufactured Home for rent: 1881 Boucherie Road Unit# 28, Westbank, British Columbia V4T 0C9

View all 43 photos

About

Tucked away in a quiet, beautifully maintained park, this charming double-wide home offers an ideal mix of tranquility and convenience. Backing onto a gentle creek, the peaceful setting is surrounded by nature, creating a truly relaxing atmosphere. Inside, the well-designed floor plan features 2 comfortable bedrooms, 1 bathroom, and a bright, open-concept kitchen and living space that feels both spacious and inviting. Step outside to your own private backyard retreat, complete with multiple planter boxes for gardening enthusiasts and a mature cherry tree that provides both shade and character. Just minutes from the lake, renowned wineries, and two exceptional golf courses, you’ll enjoy having some of the area’s best amenities right at your doorstep. Situated in a friendly 55+ community, this home offers the perfect opportunity to embrace a quiet, low-maintenance lifestyle in a wonderful setting. (id:27476)

Property Highlights

MLS® Number
10377602
Type
Single Family
Community Name
Westgate Village
Maintenance Fee
725.00
Ownership Type
Leasehold/Leased Land
Land Size
under 1 acre
Parking Space Total
2

Building

Building Type
Manufactured Home
Storeys
1.00
Square Footage
960 sqft
Bathrooms Total
1
Bedrooms Total
2
Exterior Finish
Aluminum
Fireplace Present
No
Basement Type
Basement Features
Building Heating Type
Forced air
Heating Fuel
Building Cooling Type
Central air conditioning

Utilities

Water
Private Utility
Utility Sewer
Septic tank

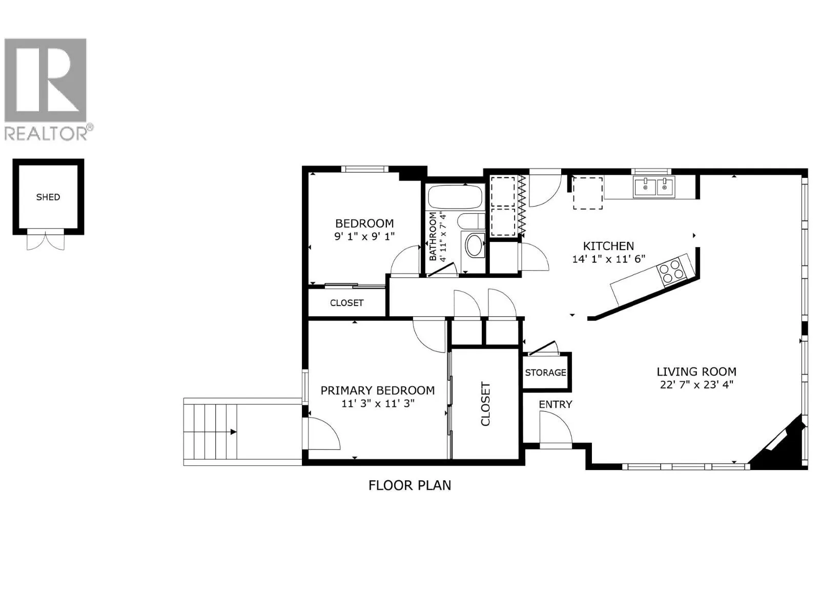
Room Layout

Full bathroom
Main level
7'4'' x 4'11''
Bedroom
Main level
9'1'' x 9'1''
Primary Bedroom
Main level
11'3'' x 11'3''
Kitchen
Main level
14'1'' x 11'6''
Dining room
Main level
11'0'' x 8'0''
Living room
Main level
22'7'' x 23'4''

Location

Learn more about this property
Listing provided by:
Century 21 Assurance Realty Ltd
MLS® number:
10377602
Agent:
Emily Zurrer
*Indicates required field
Name is required
Email is required
Please enter a valid phone number (e.g., 416-111-1111).

Street Spotlight - For sale