9249 Lakeshore Drive, Whistler, British Columbia V8E 0G6

Listed for:
$5,000,000
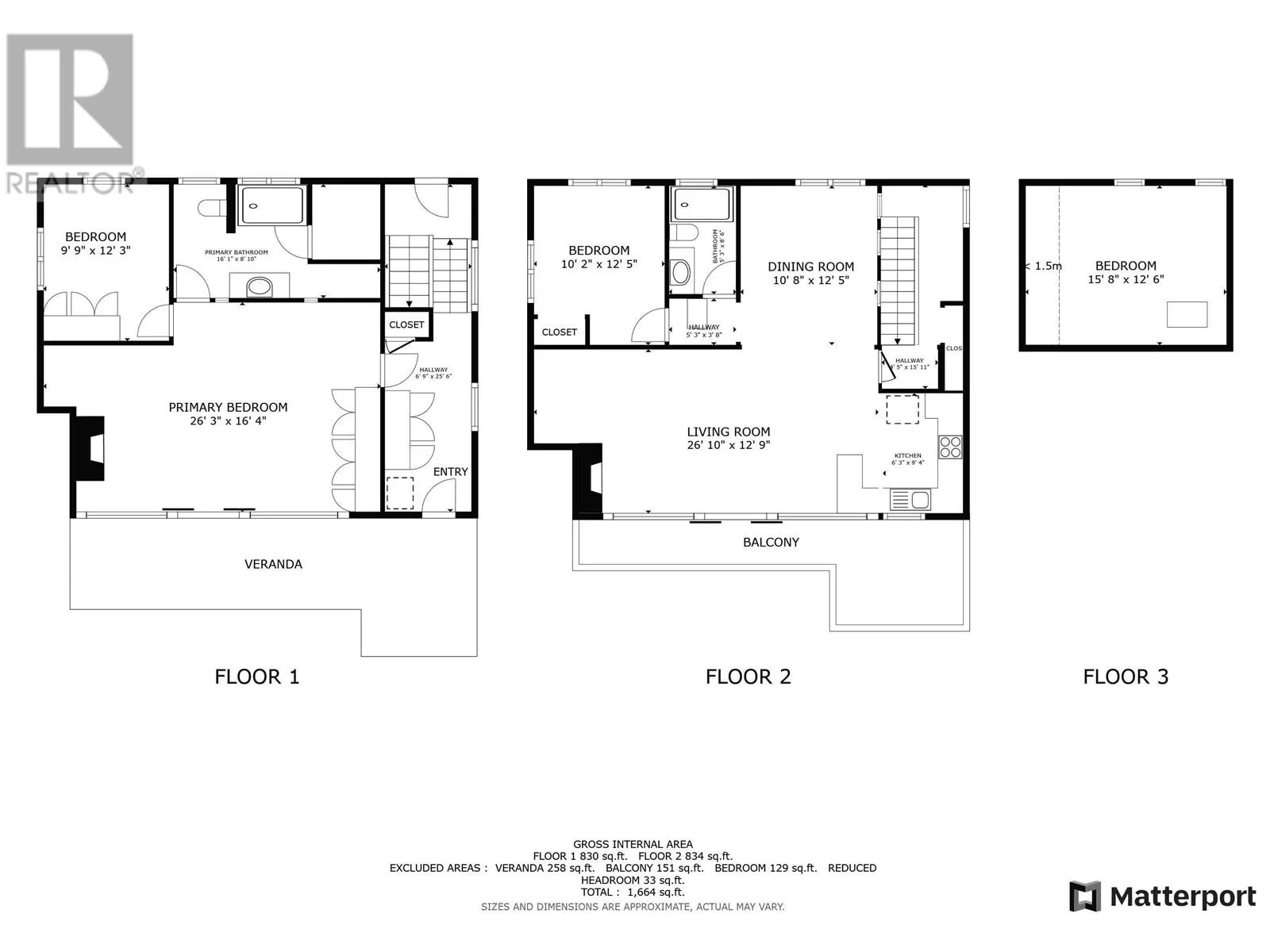
3 beds
2 baths
Listed 100 days ago
House for rent: 9249 Lakeshore Drive, Whistler, British Columbia V8E 0G6

View all 40 photos

Learn more about this property
Listing provided by:
Whistler Real Estate Company Limited
MLS® number:
R3032199
Agent:
Dave Brown
*Indicates required field
Name is required
Email is required
Please enter a valid phone number (e.g., 416-111-1111).

About

Welcome to one of Whistler's most sought-after lakefront properties. This rare opportunity features an expansive 11,316 square ft lot-one of the largest on Green Lake-with 116 feet of level lake frontage, excellent privacy, and breathtaking southwest views of Whistler/Blackcomb, and surrounding peaks. Set on a quiet cul-de-sac far from Highway 99, the 3-bedroom, 2-bathroom home has been tastefully updated with renovated bathrooms, new sliding doors, a spacious new deck, and an open-concept kitchen/living area perfect for entertaining. Enjoy a private dock, sunny lakeside lawn, and a large driveway with room to add a garage. A truly special retreat with incredible potential. (id:27476)

Property Highlights

MLS® Number
R3032199
Type
Single Family
Ownership Type
Freehold
Land Size
11316 sqft
Parking Space Total
6

Building

Building Type
House
Square Footage
1664 sqft
Bathrooms Total
2
Bedrooms Total
3
Amenities
Golf Course, Recreation, Shopping, Ski hill
Fireplace Present
Yes
Basement Type
Crawl space (Unknown)
Basement Features
Unknown
Building Heating Type
Baseboard heaters
Heating Fuel
Electric
Building Cooling Type

Location