281 St George, Bathurst, New Brunswick E2A 1B8

Listed for:
$249,900
0 beds
0 baths
Listed 243 days ago
281 St George, Bathurst, New Brunswick E2A 1B8

View all 33 photos

Learn more about this property
Listing provided by:
Keller Williams Capital Realty
MLS® number:
NB114475
Agent:
Erica Lynn
*Indicates required field
Name is required
Email is required
Please enter a valid phone number (e.g., 416-111-1111).

About

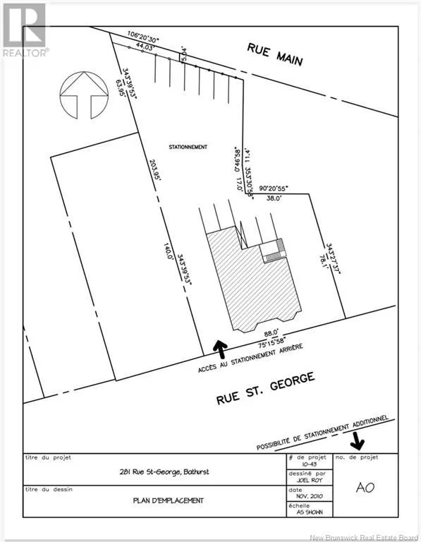
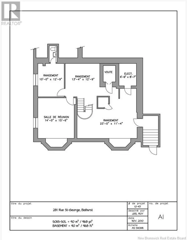
Located in the heart of Downtown Bathursts recognized Business Improvement Area (BIA), this 3-storey commercial building offers 4,196 sqft of space with a blend of character and potential. Featuring a new flat roof (Spring 2023), a new heat pump in the top-floor office (Summer 2023), spray foam insulated basement, and its own on-site parking lotthis property is a rare find. Full of charm, it includes a semi-circle staircase connecting all three floors and a historic bank vault in the basement. With roots tracing back to approximately 1847, the building was rebuilt after fires in 1923 and again in 1987. An independent appraisal completed in Summer 2023 places its current value at $341,000 with a projected post-renovation value of up to $982,000 if developed into high-end office space. A unique opportunity to own a landmark property with strong potential for future growth. Disclosure - Seller is a Licensed REALTOR® in New Brunswick. (id:27476)

Property Highlights

MLS® Number
NB114475
Type
Office
Ownership Type
Freehold
Land Size
0.284 ac

Building

Square Footage
4196 sqft
Exterior Finish
Brick
Fireplace Present
No
Basement Type
Basement Features
Building Heating Type
Baseboard heaters, Heat Pump
Heating Fuel
Electric
Building Cooling Type
Heat Pump

Location