3711 Main Street, Belledune, New Brunswick E8G 1Z7

Listed for:
$299,900
0 beds
0 baths
Listed 133 days ago
3711 Main Street, Belledune, New Brunswick E8G 1Z7

View all 34 photos

About

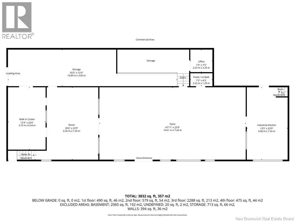
From Dalhousie on HWY 11 South, take exit 351, Turn Left onto Jacquet River drive and continue to route 134, at stop sign property is on your right. Residential & Commercial Investment Opportunity! This versatile mixed-use property sits on an approx. 1.26-acre high-visibility corner lot, offering great potential for investors and entrepreneurs. The residential section features a 2-bedroom apartment, plus a partially finished basement with its own entrance ideal for creating a future 1-bedroom unit with some finishing work and plumbing to septic. The commercial side includes a commercial kitchen, open area, large walk-in cooler, office, 1/2 bathroom, side loading dock, and plenty of storage, perfect for food service, retail, or a wide range of business uses. With high exposure, ample parking, and flexible space, this residential and commercial property offers endless possibilities. HST is Not included in the purchase price. With your personal touch this property has the potential to bring your investment vision to life. (id:27476)

Property Highlights

MLS® Number
NB131009
Type
Other
Ownership Type
Freehold
Land Size
5105 m2

Building

Square Footage
2832 sqft
Exterior Finish
Hardboard, Other, Vinyl
Fireplace Present
No
Basement Type
Basement Features
Building Heating Type
Forced air, Heat Pump
Heating Fuel
Electric, Oil
Building Cooling Type
Heat Pump

Location

Learn more about this property
Listing provided by:
RE/MAX Prestige Realty
MLS® number:
NB131009
Agent:
Eileen Fairbairn
*Indicates required field
Name is required
Email is required
Please enter a valid phone number (e.g., 416-111-1111).