88 Darryl Drive, Burton, New Brunswick E2V 3C2

Listed for:
$689,900
5 beds
3 baths
Listed 13 days ago
House for rent: 88 Darryl Drive, Burton, New Brunswick E2V 3C2

View all 48 photos

About

Route 102 to Darryl Drive/Sign is Up Exceptional executive bungalow offering over 2,700 sq. ft. on the main level and 4,600 sq. ft. of impeccably finished living space, set on a private 1+ acre estate-style lot in sought-after Burton, just minutes to Oromocto and CFB Gagetown. A striking custom-tiled entry sets the tone for this elegant, thoughtfully designed residence. The gourmet kitchen showcases beautiful wood cabinetry, granite countertops, an oversized island with breakfast bar, dining area, and a walk-in pantryperfect for entertaining. The expansive family room opens through patio doors to a refined outdoor living space featuring a deck, gazebo, and serene creek running through! Formal living and dining rooms provide timeless sophistication. The main level is anchored by a luxurious primary suite with walk-in closet, large ensuite with tiled shower and custom cabinets, along with three additional generously sized bedrooms and a full bath. An attached double garage completes the level. The lower level offers exceptional versatility with a spacious family room, third full bath, a private bedroom with sitting area, and a 26 x 14 flex space ideal for a theatre, games, or music room. Ample storage, cold storage, and convenient backyard access through lower level garage door enhances functionality. Additional highlights include three ductless heat pumps, triple paved main driveway, and a separate paved drive for RVs or recreational vehicles. A rare blend of luxury, privacy, and location. 3D Tour (id:27476)

Property Highlights

MLS® Number
NB133036
Type
Single Family
Ownership Type
Freehold
Land Size
6087 m2

Building

Building Type
House
Storeys
1.00
Square Footage
4594 sqft
Bathrooms Total
3
Bedrooms Above Ground
4
Bedrooms Total
5
Exterior Finish
Vinyl
Fireplace Present
No
Basement Type
Basement Features
Building Heating Type
Baseboard heaters, Heat Pump
Heating Fuel
Electric
Building Cooling Type
Air Conditioned, Heat Pump, Air exchanger

Utilities

Water
Drilled Well
Utility Sewer
Septic System

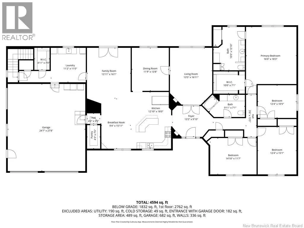
Room Layout

Bedroom
Second level
12'4'' x 15'1''
Bedroom
Second level
14'10'' x 11'7''
Foyer
Second level
13'2'' x 9'10''
Pantry
Second level
4'3'' x 7'6''
Dining nook
Second level
9'4'' x 15'11''
Kitchen
Second level
12'10'' x 18'
3pc Bathroom
Second level
9'11'' x 7'1''
Primary Bedroom
Second level
16' x 18'3''
Bedroom
Second level
12'4'' x 10'5''
Ensuite
Second level
10' x 13'10''
Other
Second level
10' x 7'1''
Other
Second level
4'11'' x 7'
Living room
Second level
13'5'' x 16'11''
Dining room
Second level
11'9'' x 13'8''
Family room
Second level
13'11'' x 16'1''
Laundry room
Second level
11'2'' x 11'10''
3pc Bathroom
Main level
21'7'' x 5'11''
Other
Main level
4'2'' x 5'11''
Bedroom
Main level
10'4'' x 14'7''
Exercise room
Main level
26'1'' x 14'3''
Sitting room
Main level
10'4'' x 10'9''
Cold room
Main level
13' x 5'5''
Utility room
Main level
26'9'' x 6'9''
Sitting room
Main level
30'6'' x 14'7''
Storage
Main level
48'1'' x 10'1''
Recreation room
Main level
33'2'' x 10'8''

Location

Learn more about this property
Listing provided by:
Keller Williams Capital Realty
MLS® number:
NB133036
Agent:
Jack Carr
*Indicates required field
Name is required
Email is required
Please enter a valid phone number (e.g., 416-111-1111).