6 Brook Terrace Street, Campbellton, New Brunswick E3N 3T3

Listed for:
$419,000
4 beds
2 baths
Listed 46 days ago
House for rent: 6 Brook Terrace Street, Campbellton, New Brunswick E3N 3T3

View all 21 photos

Learn more about this property
Listing provided by:
RE/MAX Prestige Realty
MLS® number:
NB126788
Agent:
Yves Castonguay
*Indicates required field
Name is required
Email is required
Please enter a valid phone number (e.g., 416-111-1111).

About

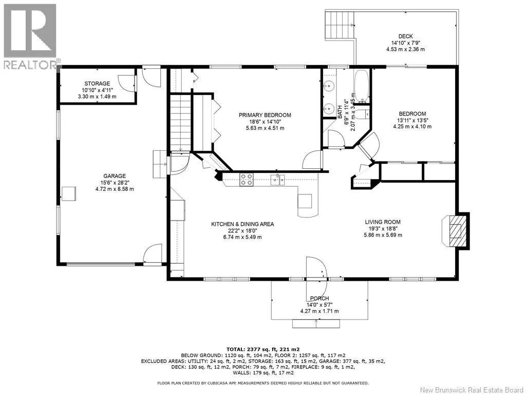
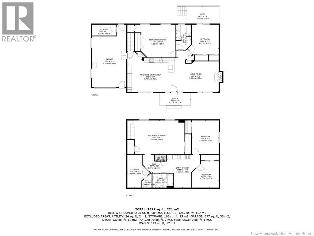
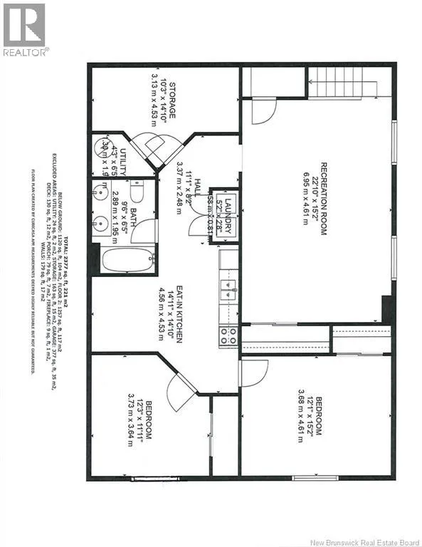
From highway 11, take exit 412 towards Campbellton. Turn left on Village ave. , then left at the light (Dover street), continue on Dover street for 1,000 metres and turn left on Brook Terrace. Your destination is on the left. Welcome to 6 Brook Terrace, Campbellton. This bungalow is located in one of the most desirable areas of the city and close to all amenities. It is well maintained and has lots of living space. The main floor consists of an open concept kitchen, dining area & living room, master bedroom, bathroom and an additional bedroom. The basement has a large recreational room, a kitchenette, two bedrooms, a bathroom, a laundry area and a storage room. This property has a central-vac, an attached garage (15x28) with epoxy floor and a sizeable backyard with apple trees. Hurry to book a showing, this one wont be on the market long. (id:27476)

Property Highlights

MLS® Number
NB126788
Type
Single Family
Ownership Type
Freehold
Land Size
901 m2

Building

Building Type
House
Storeys
1.00
Square Footage
2377 sqft
Bathrooms Total
2
Bedrooms Above Ground
2
Bedrooms Total
4
Exterior Finish
Brick, Vinyl
Fireplace Present
No
Basement Type
Full (Finished)
Basement Features
Building Heating Type
Baseboard heaters, Stove
Heating Fuel
Electric, Propane, Natural gas
Building Cooling Type

Utilities

Water
Municipal water
Utility Sewer
Municipal sewage system

Room Layout

Utility room
Basement
4'3'' x 6'5''
Storage
Basement
10'3'' x 14'10''
Laundry room
Basement
5'2'' x 2'8''
Bath (# pieces 1-6)
Basement
9'6'' x 6'5''
Bedroom
Basement
12'3'' x 11'11''
Bedroom
Basement
12'1'' x 15'2''
Dining nook
Basement
14'11'' x 14'10''
Recreation room
Basement
22'10'' x 15'2''
Storage
Main level
10'10'' x 4'11''
Other
Main level
15'6'' x 28'2''
Bath (# pieces 1-6)
Main level
6'9'' x 11'4''
Bedroom
Main level
13'11'' x 13'5''
Bedroom
Main level
18'6'' x 14'10''
Living room
Main level
19'3'' x 18'8''
Kitchen
Main level
22'2'' x 18'0''

Location