62 Duncan Street, Campbellton, New Brunswick E3N 2K9

Listed for:
$59,900
2 beds
2 baths
Listed 49 days ago
House for rent: 62 Duncan Street, Campbellton, New Brunswick E3N 2K9

View all 21 photos

About

On Roseberry Street going toward Atholville turn left on Christopher Avenue and then right on Duncan Street and the property will be on your left. Fixer-upper opportunity on Duncan Street in Campbellton! This 2-bedroom, 2-bathroom home offers potential for investors or buyers looking to add value with renovations. The property features all-electric heating, a fuse electrical panel, crawl-space basement with access from a separate laundry room, a small side porch, and a front porch. The backyard includes a shed and offers a view of Sugarloaf Mountain. Property requires TLC, is currently winterized, and is being sold as-is where is. Enter property at your own risk during showings. Cubicasa app used for measurements. (id:27476)

Property Highlights

MLS® Number
NB133602
Type
Single Family
Ownership Type
Freehold
Land Size
465 m2

Building

Building Type
House
Storeys
1.00
Square Footage
938 sqft
Bathrooms Total
2
Bedrooms Above Ground
1
Bedrooms Total
2
Amenities
Shopping
Exterior Finish
Cedar shingles, Hardboard, Other
Fireplace Present
No
Basement Type
Crawl space
Basement Features
Building Heating Type
Baseboard heaters
Heating Fuel
Electric
Building Cooling Type

Utilities

Water
Municipal water
Utility Sewer
Municipal sewage system

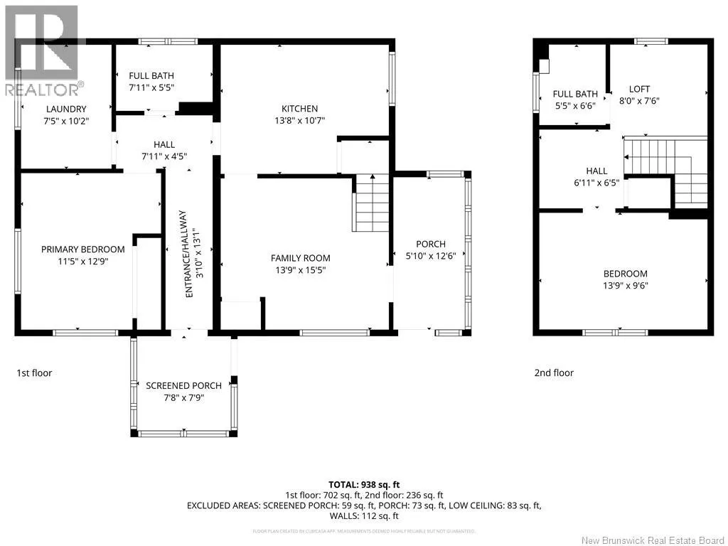
Room Layout

Loft
Second level
8'0'' x 7'6''
Bedroom
Second level
13'9'' x 9'6''
Bath (# pieces 1-6)
Second level
5'5'' x 6'6''
Enclosed porch
Main level
5'10'' x 12'6''
Primary Bedroom
Main level
11'5'' x 12'9''
Laundry room
Main level
7'5'' x 10'2''
Bath (# pieces 1-6)
Main level
7'11'' x 5'5''
Family room
Main level
13'9'' x 15'5''
Kitchen
Main level
13'8'' x 10'7''
Foyer
Main level
3'10'' x 13'1''
Enclosed porch
Main level
7'8'' x 7'9''

Location

Learn more about this property
Listing provided by:
RE/MAX Prestige Realty
MLS® number:
NB133602
Agent:
Zoe Pitre Levesque
*Indicates required field
Name is required
Email is required
Please enter a valid phone number (e.g., 416-111-1111).