18 Route 955, Cape Tormentine, New Brunswick E4M 2A3

Listed for:
$179,500
3 beds
2 baths
Listed 94 days ago
House for rent: 18 Route 955, Cape Tormentine, New Brunswick E4M 2A3

View all 33 photos

About

From Route 16 Port Elgin traffic circle head toward PEI, turn right onto Immigrant Road, left onto Route 955 FAMILY HOME OR SUMMER GETAWAY CLOSE TO THE BEACH! This home is located a short stroll to one of the best beaches around, and sits just 20 minutes to Port Elgin, and 5 minutes to the Confederation Bridge. Through the front door is a large foyer, to the left is a bright spacious living room, and to the right is the dining room or family room, a full 3pc bathroom, and a country kitchen with breakfast area, as well as a main floor laundry room. The second floor has three great sized bedrooms, a full 4pc bathroom, and a staircase that leads to the 3rd floor attic space (perfect for storage or future living space). Updates include a ductless heat pump (3 years), concrete septic system (pumped 2 years). (id:27476)

Property Highlights

MLS® Number
NB131498
Type
Single Family
Ownership Type
Freehold
Land Size
0.48 ac

Building

Building Type
House
Storeys
2.00
Square Footage
1588 sqft
Bathrooms Total
2
Bedrooms Above Ground
3
Bedrooms Total
3
Exterior Finish
Asbestos
Fireplace Present
No
Basement Type
Full (Unfinished)
Basement Features
Building Heating Type
Baseboard heaters, Heat Pump
Heating Fuel
Electric
Building Cooling Type
Heat Pump

Utilities

Water
Well

Room Layout

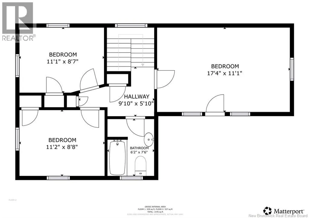
4pc Bathroom
Second level
6'2'' x 7'6''
Bedroom
Second level
11'2'' x 8'8''
Bedroom
Second level
11'1'' x 8'7''
Bedroom
Second level
17'4'' x 11'1''
Laundry room
Main level
6'6'' x 6'11''
Dining nook
Main level
7'7'' x 7'4''
Kitchen
Main level
11'5'' x 14'7''
3pc Bathroom
Main level
9'11'' x 5'4''
Dining room
Main level
17'6'' x 11'3''
Living room
Main level
11'1'' x 19'6''

Location

Learn more about this property
Listing provided by:
RE/MAX Sackville Realty Ltd.
MLS® number:
NB131498
Agent:
Jamie Smith
*Indicates required field
Name is required
Email is required
Please enter a valid phone number (e.g., 416-111-1111).