172 D'astous Street, Dalhousie, New Brunswick E8E 1M2

Listed for:
$239,900
6 beds
2 baths
Listed 52 days ago
House for rent: 172 D'astous Street, Dalhousie, New Brunswick E8E 1M2

View all 29 photos

About

When coming into town from Irving take a right to Goderich going toward inch Arran, D'Astous in the second street on the left. Spacious and versatile, this well-kept 6-bedroom plus 1 non-conforming bedroom and 2 full-bath single-family home offers comfort and flexibility. Situated on a beautifully landscaped lot, the main floor features a bright, open kitchen and dining area, along with a large living space, a full, newly renovated, bathroom and 2 bedrooms. The 2nd floor boasts 4 large bedrooms, a full bathroom and a flex area perfect for office, playroom or storage. This level could easily be converted in an apartment. The basement includes a finished, non-conforming, bedroom, laundry area and plenty of room for storage or workshop. Ideally located, close to beaches, playgrounds, restaurants, a recreational centre, and so much more, this home combines lifestyle, convenience, and plenty of room to grow. Renovations/Additions include: Radon gas mitigation system; all windows are PVC with exception of two; manual generator panel (2018); front roof shingles (approx. 2017) and main house (2024); a new ducted Heat Pump and additional ductless Heat Pump for the 2nd floor (2024); newly renovated entrance and bathroom. Call/text now for your personal showing. (id:27476)

Property Highlights

MLS® Number
NB134002
Type
Single Family
Ownership Type
Freehold
Land Size
557 m2

Building

Building Type
House
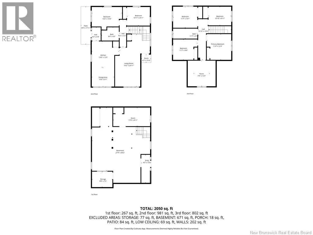
Square Footage
2050 sqft
Bathrooms Total
2
Bedrooms Above Ground
6
Bedrooms Total
6
Amenities
Marina, Recreation Nearby
Exterior Finish
Wood siding
Fireplace Present
No
Basement Type
Full
Basement Features
Building Heating Type
Baseboard heaters, Heat Pump
Heating Fuel
Electric
Building Cooling Type
Heat Pump

Utilities

Water
Municipal water
Utility Sewer
Municipal sewage system

Room Layout

Office
Second level
7'8'' x 12'3''
Bath (# pieces 1-6)
Second level
11'7'' x 4'1''
Bedroom
Second level
14'6'' x 10'9''
Bedroom
Second level
10'10'' x 8'11''
Bedroom
Second level
11'7'' x 10'1''
Primary Bedroom
Second level
11'8'' x 12'4''
Other
Basement
4'3'' x 13'5''
Storage
Basement
9'9'' x 7'5''
Utility room
Basement
27'9'' x 30'2''
Bedroom
Basement
17'8'' x 8'11''
Bath (# pieces 1-6)
Main level
8'4'' x 6'5''
Bedroom
Main level
10'11'' x 8'11''
Bedroom
Main level
14'6'' x 10'9''
Foyer
Main level
4'3'' x 6'4''
Living room
Main level
14'5'' x 24'11''
Kitchen/Dining room
Main level
13'0'' x 21'6''

Location

Learn more about this property
Listing provided by:
RE/MAX Prestige Realty
MLS® number:
NB134002
Agent:
Ginette Bujold
*Indicates required field
Name is required
Email is required
Please enter a valid phone number (e.g., 416-111-1111).