205 Centennial Heights Street, Dalhousie, New Brunswick E8C 1K5

Listed for:
$149,900
3 beds
1 baths
Listed 2 days ago
House for rent: 205 Centennial Heights Street, Dalhousie, New Brunswick E8C 1K5

View all 25 photos

About

From Darlington going to Dalhousie on renfrew street, take Centennial Heights on the left house is on the right. This bungalow located in Dalhousie offers a 3 bedroom, 1 bath, eat-in kitchen and living room . House built in the 70s , some upgrade were done since, a concrete foundation was done in around 2010, pvc windows change throughout the house except one in living room and dining room. Electric 200 amps breaker panel, roof shingles approx. 5-6 yrs ago. Unfinished basement. Oil heat and oil tank 2007 so will probably need to be replaced. All appliances included and probably some furniture. (id:27476)

Property Highlights

MLS® Number
NB137017
Type
Single Family
Ownership Type
Freehold
Land Size
669 m2

Building

Building Type
House
Storeys
1.00
Square Footage
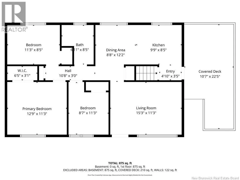
875 sqft
Bathrooms Total
1
Bedrooms Above Ground
3
Bedrooms Total
3
Amenities
Recreation Nearby, Hospital
Exterior Finish
Colour Loc, Other, Wood
Fireplace Present
No
Basement Type
Basement Features
Building Heating Type
Forced air
Heating Fuel
Building Cooling Type

Utilities

Water
Municipal water
Utility Sewer
Municipal sewage system

Room Layout

Bath (# pieces 1-6)
Main level
6'11'' x 8'5''
Bedroom
Main level
8'7'' x 11'3''
Bedroom
Main level
11'3'' x 8'5''
Primary Bedroom
Main level
12'9'' x 11'3''
Living room
Main level
15'3'' x 11'3''
Dining room
Main level
8'8'' x 12'2''
Kitchen
Main level
9'9'' x 8'5''
Foyer
Main level
4'10'' x 3'5''

Location

Learn more about this property
Listing provided by:
RE/MAX Prestige Realty
MLS® number:
NB137017
Agent:
Ginette Bujold
*Indicates required field
Name is required
Email is required
Please enter a valid phone number (e.g., 416-111-1111).